Specification

PSP-L-P1519LF Rev. D
STANDARD SPECIFICATIONS:
BATHROOM FAUCET
WARRANTY:
• Maximum 1.0 gpm @ 60 psi, 3.8 L/min @ 414 kPa
(P1519LFp, P1519LFp-M & P1519LFp-LPU)
• Maximum 0.5 gpm @ 60 psi, 1.9 L/min @ 414 kPa
(P1519LFp-0.5, P1519LFp-M-0.5 & P1519LFp-LPU-0.5)
• Solid brass casted body
• One or three hole mount (escutcheon optional, included)
• Ceramic cartridge
• Red/Blue indicator markings
• Polymer braided flexible supply hose with 3/8" compression
fitting - 29 7/16" (747mm) long
• Models with no suffix have 50/50 pop-up type fitting with
plated flange and stopper
• Models with suffix "M" have metal drain with pop-up
type fitting with plated flange and stopper
• Models with suffix "LPU" are less pop-up
• Parts and Finish - Lifetime limited warranty;
or for commercial purchasers, 10 years for multi-family
residential (apartments and condominiums) and 5 years
for all other commercial uses, in each case from the date
of purchase.
P1519LF
▲
P1519LF
▲
-M
P1519LF
▲
-LPU
P1519LF
▲
-0.5
P1519LF
▲
-M-0.5
P1519LF
▲
-LPU-0.5
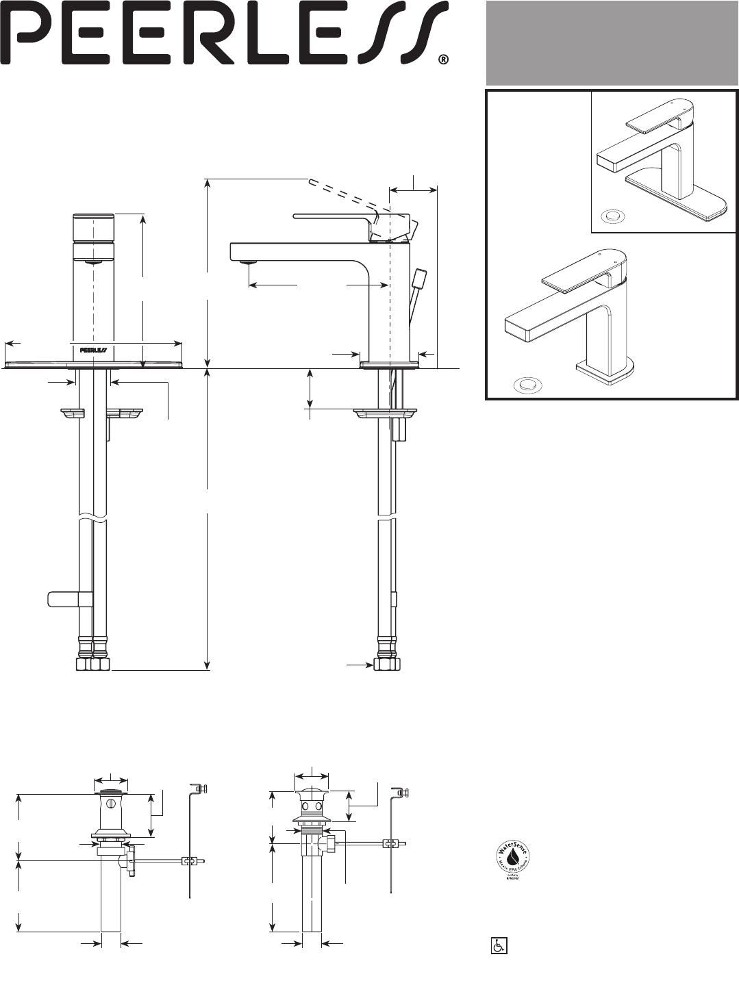
1 1/4"
(32 mm)
Dia.
1 1/4"
(32 mm)
Dia.
1 3/8"
(35 mm)
Dia.
1 3/8"
(35 mm)
Dia.
2 1/8"
(54 mm)
Dia.
2 1/8"
(54 mm)
Dia.
1 5/8"
(41 mm)
to
2 3/8"
(60 mm)
4 5/16
"
(110 mm)
4 1/8
"
(105 mm)
COMPLIES WITH:
• ASME A112.18.1 / CSA B125.1
• ASME A112.18.2 / CSA B125.2
• EPA WaterSense
®
- Applies to P1519LFp,
P1519LFp-M & P1519LFp-LPU only
Indicates compliance to
ICC / ANSI A117.1
5 3/16"
(132 mm)
5 15/16"
(151 mm)
2"
(50 mm)
5"
(127 mm)
29 7/16"
(747 mm)
Min.2 1/2" (64 mm)
Clearance to Back
Splash Recommended
1 3/8"
(35 mm)
Max. Deck
Thickness
1 1/8"~1 1/2"
(29~38 mm)
Hole Size
6"
(152 mm)
■ Single Handle Deck Mount
■ 1 or 3 Hole Sink Applications
▲ Designate proper nish sufx
3/8" compression tting
RP26533
p
Metal Pop-up
RP38958
p
50/50 Pop-Up
1 5/8" (41 mm)
to
2 3/8" (60 mm)
4 5/8
"
(117 mm)
3 3/8
"
(86 mm)

