Installation Sheet

PERLICK RESIDENTIAL COLUMN REFRIGERATION INSTALLATION INSTRUCTIONS
perlick customer service (800)558-5592 | 7
LEVELING / ALIGNMENT
LEVELING/ALIGNMENT
Move the unit near the opening. Plug the power cord into the
grounded outlet and roll the unit into posion. Push unit into
place.
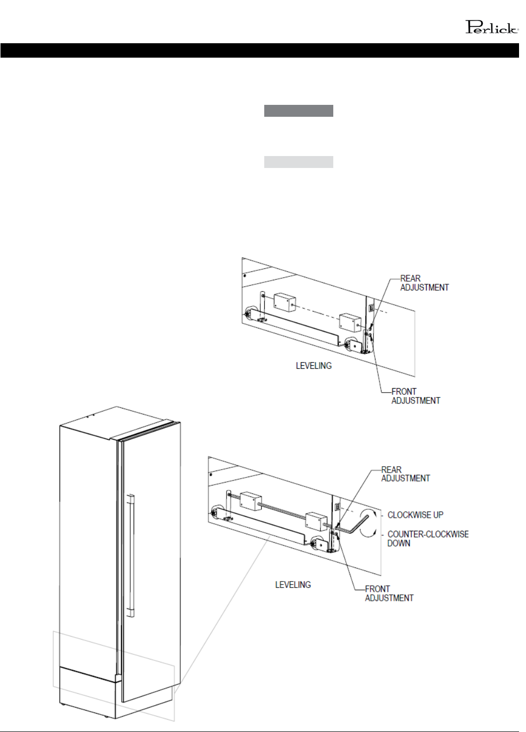
Front and rear leveling legs can be adjusted from the front once
the unit is posioned. To access leveling adjustment access
holes, remove toe kick grill.
Once the unit is in posion, height adjustment can be made
from the front. Using the hex driver leveling tool, turn clockwise
to raise the unit or counterclockwise to lower. Refer to the
illustraon below.
WARNING
CAUTION
When the unit is properly leveled, door adjustments are less
likely to be needed.
To reduce the possibility of the unit pping
forward, the front leveling legs must be in contact with the
oor.
The refrigerated cabinet should be level for
proper operaon, such as door closing, drawer and shelf slide
operaon.










