Planning Guide

DOOR OVERLAY PANELS
Perlick CR24 column refrigeration comes ready to accept a customer-supplied door overlay panel
and customer-supplied handle. A minimum 5/8" thick panel is required, however, the thickness can
increase provided the panel does not exceed a weight of 65 lbs. The depth of each model is 24"
without a finished overlay, so be sure to allow for panel thickness when planning the finished
opening depth.
This guide includes solid and glass door templates with 4" and 6" toe kicks. Please note that when
installing a panel thicker than 3/4", a 90° stop may be required to prevent damage to both the
unit and surrounding cabinetry.
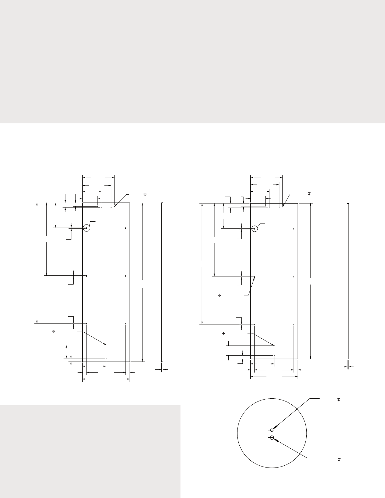
SOLID DOOR OVERLAY TEMPLATE
FOR 4" TOE KICK
SOLID DOOR OVERLAY TEMPLATE
FOR 6" TOE KICK
OVERLAY CLIP
DETAIL A & B
REVEALS
Reveals between panels can vary — 1/8"
is the minimum. As reveals between
cabinetry and the unit decrease, severe
finger pinching can occur while the
door is closing.
Measurements shown in inches (") Measurements shown in inches (")
14-3/8"
9-3/8"
16-1/8"
7-5/8"
1-3/4"
2-1/4"
12-1/2"
3/8"
A
3/8"
36-1/2"
60-1/2"
Ø 1/8" 1/2" (4X)
79-7/8"
3/8"
Ø 1/8" 1/4" (2X)
6-3/4"
1-11/16"
2-1/16"
11-7/8"
19-5/8"
23-3/4"
2-1/16"
3/4"
14-3/8"
16-1/8"
9-3/8"
7-5/8"
Ø 1/8" 1/2" (4X)
1-3/4"
2-1/4"
12-1/2"
36-1/2"
60-1/2"
B
3/8"
3/8"
3/8"
Ø 3/16" 1/4" (12X)
4-7/8"
1-3/4"
2-1/16"
11-7/8"
19-5/8"
23-3/4"
2-1/16"
3/4"
77-7/8"
Ø 1/8" 1/2" (6X)
Ø 3/16" 1/2" (6X)
Ø 1/8" 1/4" (2X)
4