Specifications Sheet

8300 W. Good Hope Rd. • Milwaukee, WI 53223 • (800) 558-5592 • Fax: (414) 353-7069 • perlick.com
Perlick is committed to continuous improvement. Therefore, we reserve the right to change specications without warning.
Form No.HH24WS-3
Rev. 02.09.2017
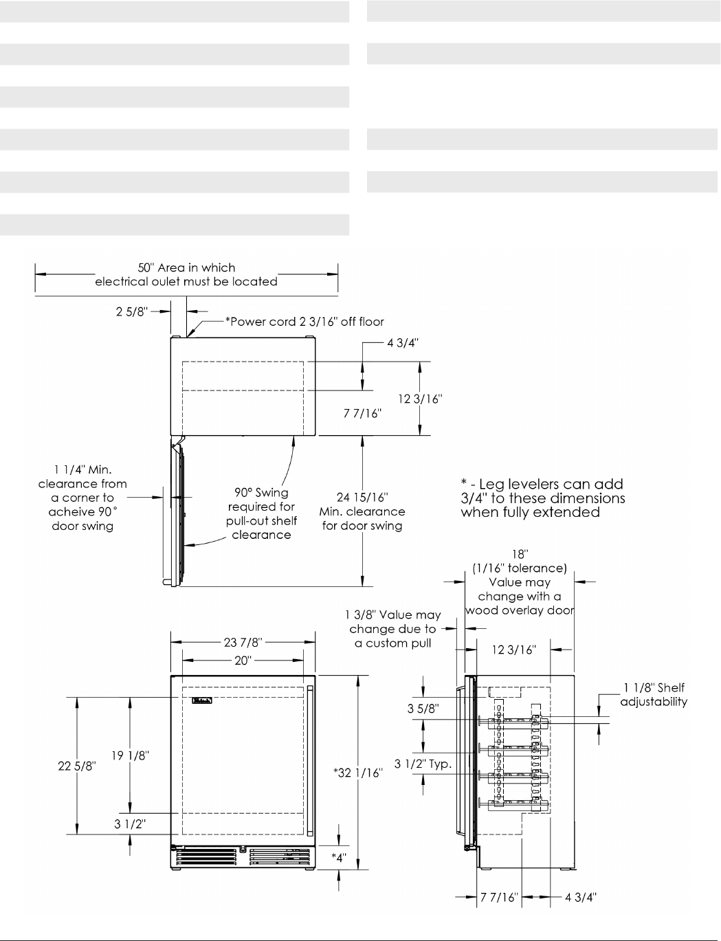
Overall Width 23-7/8” (60.64 cm.)
Overall Height 32” (81.28 cm.)
Overall Depth 18” (45.72 cm.)
Opening Width 24” (60.96 cm.)
Opening Height 32-1/8” (81.60 cm.)
Opening Depth 18” (45.72 cm.)
Refrigerated Volume 3.1 cu. ft.
Door Swing Clearance 25” (63.5 cm.) minimum
Electrical 115V, 60Hz., 1 Phase, 2.3 amps
Plumbing None Required
Shipping Weight 185 lbs (83.91 kg.)
product specifications indoor models
HH24WS-3-1L* Solid stainless steel door, hinge left
HH24WS-3-2L* Solid wood overlay door, hinge left
HH24WS-3-3L* Stainless steel glass door, hinge left
HH24WS-3-4L* Wood overlay glass door, hinge left
outdoor models
HH24WO-3-1L* Solid stainless steel door, hinge left
HH24WO-3-2L* Solid wood overlay door, hinge left
HH24WO-3-3L* Stainless steel glass door, hinge left
HH24WO-3-4L* Wood overlay glass door, hinge left
* Also available hinge right


