Specifications

8300 W. Good Hope Rd. • Milwaukee, WI 53223 • (800) 558-5592 • Fax: (414) 353-7069 • perlick.com
Perlick is committed to continuous improvement. Therefore, we reserve the right to change specications without warning.
Form No.HP15T-3A
Rev. 02.09.17
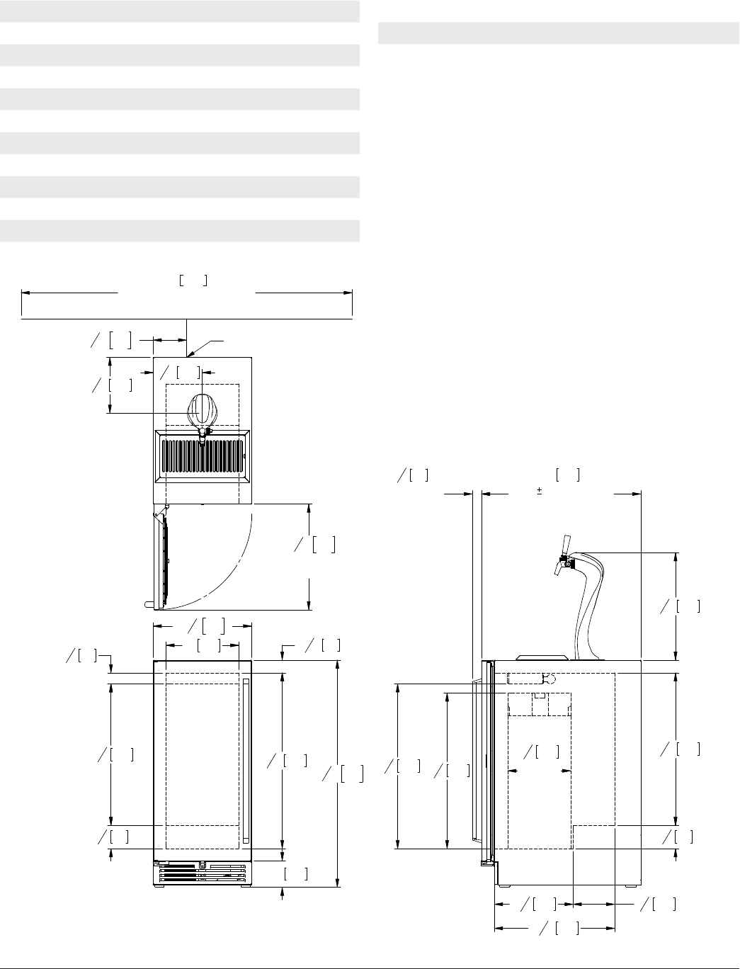
Overall Width 14-7/8” (37.78 cm.)
Overall Height 34-1/4” (86.96 cm.)
Overall Depth 24” (60.96 cm.)
Opening Width 15” (38.1 cm.)
Opening Height 34-3/8” (87.31 cm.)
Opening Depth 24” (60.96 cm.)
Refrigerated Volume 2.8 cu. ft.
Door Swing Clearance 16” (40.64 cm.) minimum
Electrical 115V, 60Hz., 1 Phase, 2.3 amps
Plumbing None Required
Annual Energy Usage 280 kWh/yr
Shipping Weight 144 lbs (100.7 kg.)
product specifications ADARA indoor models
HP15TS-3-1LA Solid stainless steel door, hinge left*
HP15TS-3-2LA Solid wood overlay door, hinge left*
* Also available hinge right
Single Faucet models
11
7
8
" 302 6
1
4
" 159
3
1
2
" 89
23
1
16
" 585
24
7
8
" 632
18
3
16
" 461
9
1
2
" 241
Typical
sixth
barrel.
23
1
2
" 597
16
3
16
" 412
3
1
2
" 89
21
3
8
" 543
1
5
8
" 42
1
15
16
" 49
26
9
16
" 674
11" 279
15
15
16
" 405
Min. clearance
for door swing.
50" 1270
Area in which
electrical outlet must be located
5
1
16
"
129
PERLICK CORPORATION
MILWAUKEE, WI 53223
PROPERTY OF THE PERLICK CORP.
NOT TO BE COPIED OR USED DETRIMENTAL TO OUR INTERESTS
DR.:
PRINTED
DATE:
6/9/2015
95004
9/30/09DAS
SCALE: 1:10
J:\Dwg\95000\95004.slddrw
SHEET 2 OF 3
Signature Series HP15 Models
Tapping
*
- Leg leveler can add
3/4" [19] to these dimensions
when fully extended.
24"
611
(with
1/16" toleramce)
Value may change
with a wood overlay door.
1
3
8
" 35
Value may
change due to a
custom pull.
14
7
8
"
378
*34
5
16
" 872
*3 7/8" 100
Power cord 6-5/8" [168] off floor.*
8
7
16
" 214
7
7
16
" 189
6/9/2015 1:08 PM