User Guide

© 2008
8
15" Signature Series Operation / Installation Manual
DD
C
B
B
14
9
/16”
13
12
/32”
13
3
/16”
10
57
/64”
8
25
/32”
5
25
/32”
3
11
/16”
2
15
/64”
1
25
/32”
27
/32”
0”
0”
27
/32”
2
15
/64”
3
11
/16”
Ø
1
/8”
1
/2” Deep
Typical
13
39
/64”
10
7
/64”
9”
16
39
/64”
15
7
/64” on
locking doors
only
Rearview
These (2) holes
not to be drilled
for a door with
lock
25
49
/64”
24
43
/64”
13
/64”
26
35
/64”
29
3
/8”
30
15
/64”
13
/64”
19
/64”
7
/16”
Ø
11
/32”
15
/32” deep
Hole drilled at both ends
1
/16”
R
29
/64”
Front
Rear
Section D-D
3
/4”
7
/8”
1
25
/32”
3
/4” hole detailed
in view “C”
All features called out
in this detail view apply
only to panels being
used on locking doors
R 1
11
/16”
Ø
1
/8”
1
/4” deep
Ø
3
/4”
thru
1”
2”
27
/64”
1
1
/8”
1
1
/16”
1
3
/16”
3
1
/4”
Ref
Detail C
3
/64”
2
1
/8”
27
/64”
deep
11
/64”
deep
19
/32”
deep
Section B-B
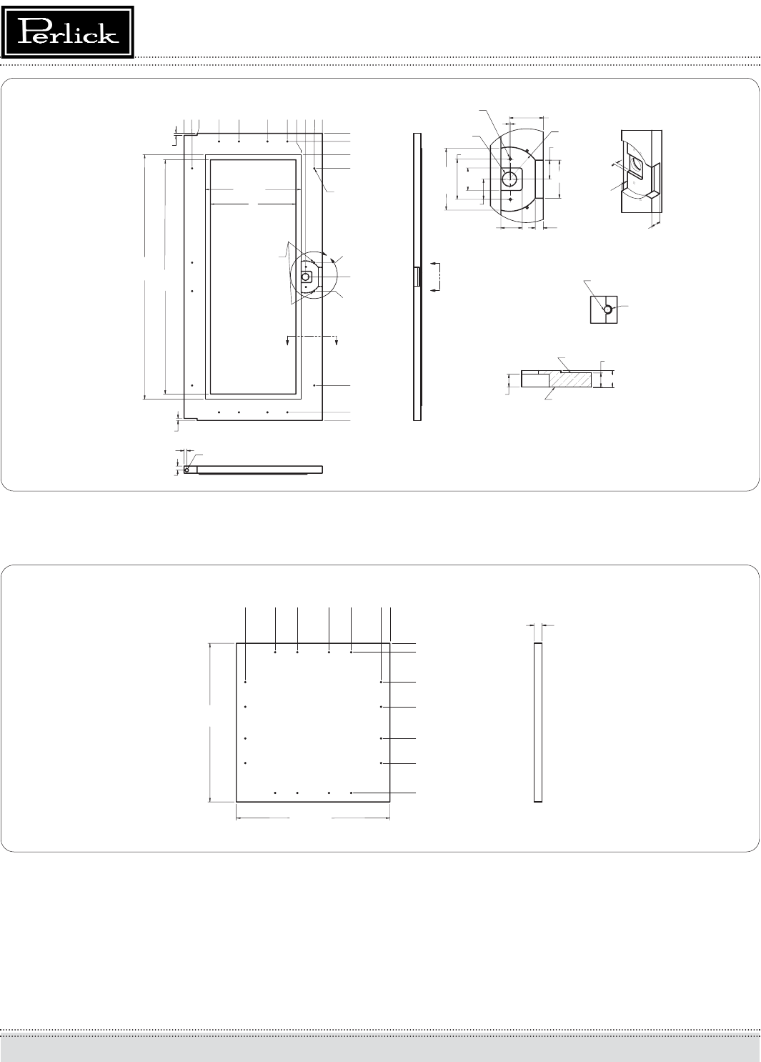
Figure 8. Glass Wood Overlay Panel
Figure 9. Drawer Solid Wood Overlay
13
23
/32”
10
57
/64”
8
25
/64”
5
25
/32”
3
11
/16”
27
/32”
0”
0”
27
/32”
3
11
/16”
6
1
/64”
9
1
/64”
11
23
/64”
14
3
/16”
14
9
/16”
REARVIEW
15
1
/32”
3
/4”










