Instructions / Assembly

11
NOTE: When heater is installed directly on carpeting, tile or other combustible material, other than wood flooring, the
heater must be installed on a metal or wood panel extending the full width and depth of the heater.
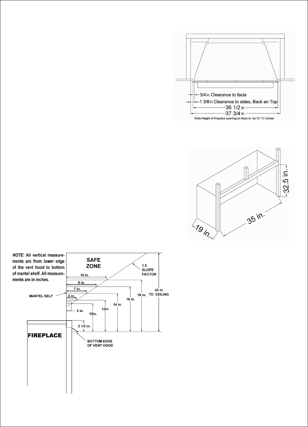
BUILT-IN FIREPLACE INSTALLATION
Built-in installation of this fireplace involves installing
fireplace into a framed-in enclosure. This makes
the front of the fireplace flush with wall. If installing
a built-in mantel above the fireplace, you must
follow the clearances shown in Figure 5.
Follow the instructions.
NOTICE: Surface temperatures of adjacent walls
and mantels become hot during operation. Walls
and mantels above the firebox may become hot
to the touch. If installed properly, these temperatures
meet the requirement of the national product standard.
Follow all minimum clearances shown in this
manual. See Figure 6.
1. Frame in rough opening. Use dimensions shown in Figure 7
for the rough opening. If installing in a corner, use
dimensions shown in Figure 8 for the rough opening.
The height is 23 1/4 -in., which is the same
as the wall opening above.
2. Carefully set fireplace in front of rough opening with back of
fireplace inside wall opening.
3. Attach gas line to fireplace gas regulator. See "Connecting
to Gas Supply," page 13.
4. Check all gas connections for leaks. See Checking Gas
Connections, page 16.
Figure 5 – Clearance to Combustibles
Figure 6
Figure 7 - Rough Opening for Installing in Wall










