Installation guide
Manuals
Brands
Progress Lighting Manuals
Other
P5058-09
1
2
1
2
Summary of content (2 pages)
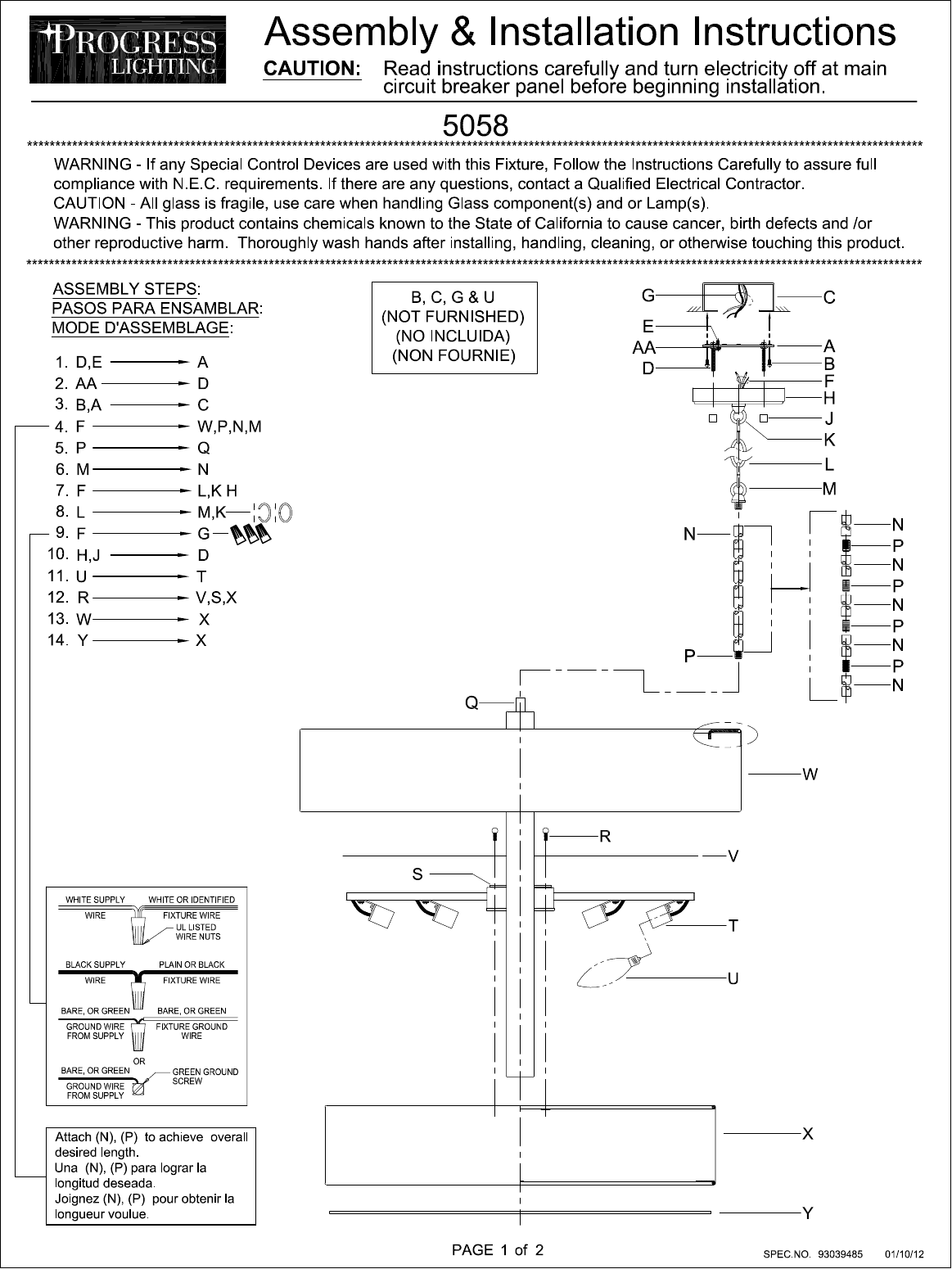
PAGE 1
PAGE 2