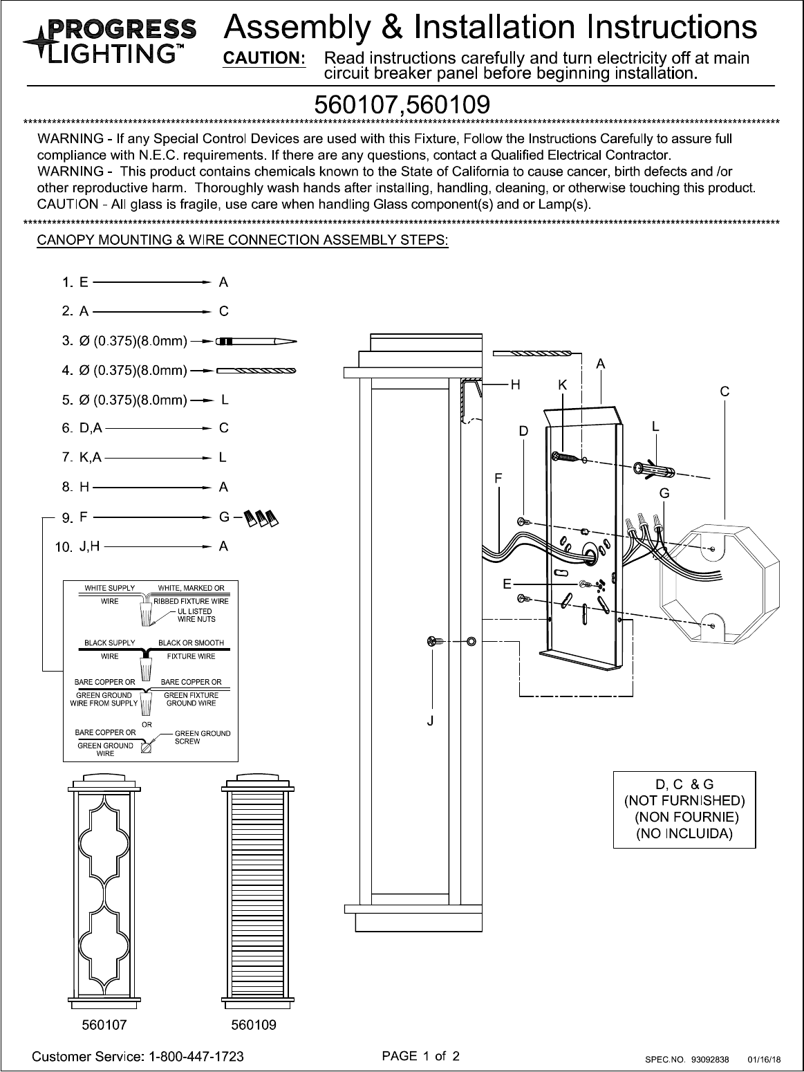
OGRESS Assembly & Installation Instructions LIGHTING™ CAUTION: Read instructions carefully and turn electricity off at main circuit breaker panel before beginning installation. 560107,560109 WARNING If any Special Control Devices are used with this Fixture, Follow the Instructions Carefully to assure full compliance with N.E.C. requirements. If there are any questions, contact a Qualified Electrical Contractor.