Installation Guide
Manuals
Brands
Rand and Reardon Manuals
Boilers
RRG Series 84% AFUE Gas Water Boiler with 130,000 BTU Input and 96,000 Output
31
32
33
34
35
36
37
38
39
40
37
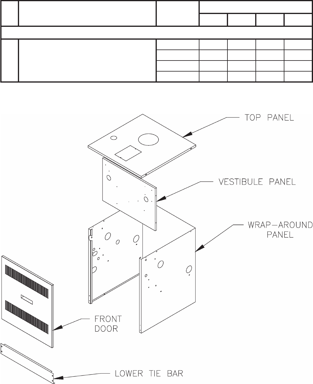
Key
No.
Description
Part Number
Boiler Model
RRG062
RRG096
RRG130
RRG164
Jacket Assembly
,
Complete
37
Jacket Assembly
,
Complete
106896-03
1
---
---
---
106896-04
---
1
---
---
106896-05
---
---
1
---
106896-06
---
---
---
1
1
...
...
35
36
37
38
39
...
40