Installation Guide

3
Table 1A: Connection Sizes
Electrical Requirements: 120VAC, 60 Hz, 1-ph, Less than 12A
Maximum Allowable Working Pressure - 50 psi. Boiler shipped from factory with a 30 psi relief valve.
Boiler Model Input (MBH)
(1)
Shipping Weight
(lbs)
Water Content
(gal)
RRG062 62 254 3.2
RRG096 96 298 4.0
RRG130 130 346 4.7
RRG164 164 408 5.5
Table 1B: Inputs, Weights and Volumes
(1)
Input ratings can be used for elevations up to 2000 ft.
Boiler
Model
Supply NPT
(inch)
Return NPT
(inch)
Vent
(1)
(inch)
Gas NPT
(inch)
Relief Valve
NPT (inch)
Drain
NPT (inch)
RRG062 4 ½ ¾ ¾
RRG096 5 ½ ¾ ¾
RRG130 6 ½ ¾ ¾
RRG164 6 ½ ¾ ¾
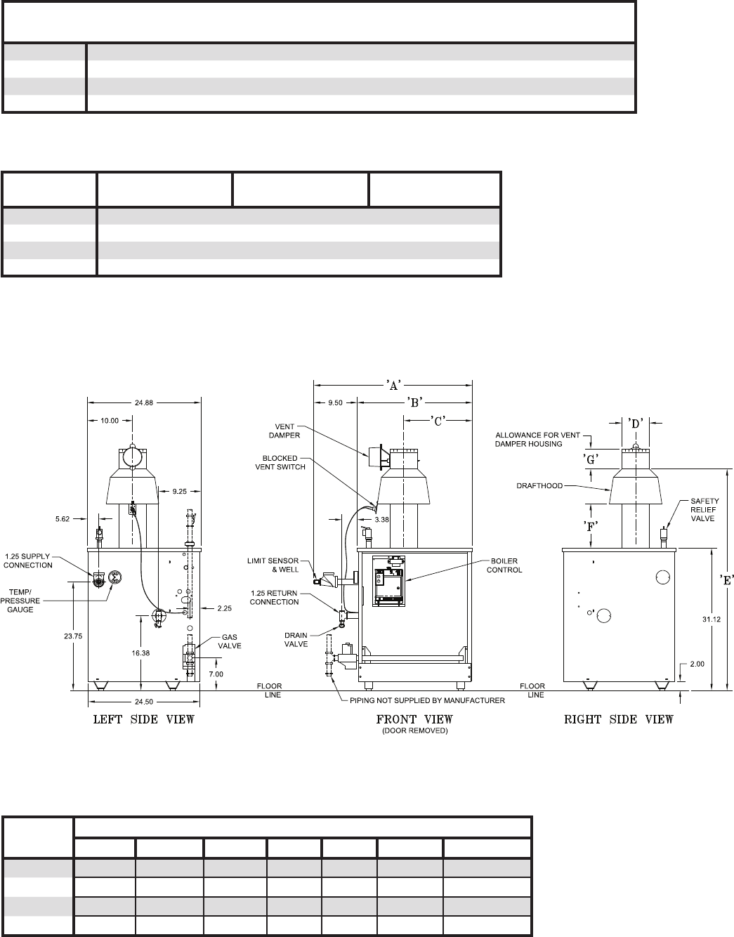
Figure 1: Dimensional Drawing
Table 2: Dimensional Data
Boiler
Model
Dimensions [Inches]
'A' 'B' 'C' 'D' 'E' 'F' 'G'
RRG062 21-1/2 12 6 4 45-3/4 8-1/2 4-3/4
RRG096 24-3/4 15-1/4 7-5/8 5 47-1/8 9-1/8 4-3/4
RRG130 28 18-1/2 9-1/4 6 48-1/2 9-3/4 5-1/4
RRG164 31-1/4 21-3/4 10-7/8 6 48-1/2 9-3/4 5-1/4
(1)
Refer to the National Fuel Gas Code for equivalent areas of circular and rectangular ue linings.