Operating instructions

6. Remove combustion chamber clips at the four
corners of the heat exchanger.
7. Lift heat exchanger straight up using caution not to
damage refractory.
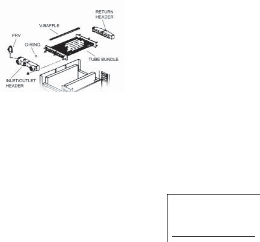
HEAT EXCHANGER RE-ASSEMBLY
1. Heat exchanger water header O-rings should be
replaced with new ones.
2. Install in/out and return water headers and
install header retainer nuts and torque nuts evenly.
3. Replace "V" baffles.
4. Install thermostat sensing bulbs in header wells
and replace bulb retaining clips.
5. Install inlet and return pipes in water headers using
pipe thread sealant.
6. Install water pressure relief valve, flow switch, and
low water cut-off devices if so equipped.
7. Open water supply and return shut-off valves. Fill
boiler and water piping system with water. Check
boiler and piping system for leaks at full line pres-
sure. Run system circulating pump for a minimum
of 1/2 hour with boiler shut off.
8. Shut down entire system and vent all radiation units
and high points in system piping. Check all strain-
ers for debris. Expansion tank water level should
be at the 1/4 mark and the balance of the tank filled
with air (when using Air-X-Tank).
9. Install flue collector, jacket top and inspection pan-
els. Install top holding screws. Install draft diverter
and vent piping if so equipped.
10. If gas piping was disconnected, reconnect gas
piping system and check for leakage using a soap
solution.
11. Check for correct water pressure and water level in
the system. Make sure that system pump operates
immediately on the call for heat. The system is
ready for operation.
13. Within two (2) days of start-up, recheck all air vents
and expansion tank levels.
COMBUSTION CHAMBER REMOVAL
To remove combustion chamber you must first
have removed the heat exchanger. Unbolt metal com-
bustion chamber retainer from top and remove com-
bustion chamber panels individually.
30
Fig# 9337










