Operating instructions

2) When the boiler is installed in a confined space
such as a utility room or closet (Models 0030,0042
and 0066 only), where all air is supplied from inside
the building, the boiler room must be provided with
two openings, each one having a minimum net free
area, in square inches as follows:
Model Sq. In. of Free Area
0030, 0042 & 0066 100
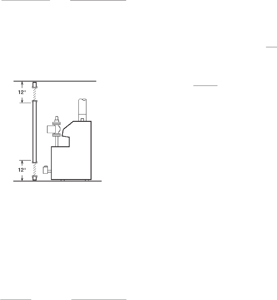
One opening shall be within 12" of the top, and the
other opening within 12" of the floor. If additional gas
appliances are installed in the same space, the total input
of all gas appliances installed in the same space, must
be considered in the calculation. Refer to Sec. 5.3.5 of the
latest edition of the National Fuel Gas Code for additional
requirements.
Fig. #8198.0
NOTE: If louvers, grills or screens are used on the
openings, obtain the net free area requirements from
their supplier or manufacturer. If the design free area of
a louver is not known nor available, it shall be assumed
that wood louvers will have 20-25 percent free area and
metal louvers will have 60-75 percent free area as shown
in Sec. 5.3.5 National Fuel Gas Code.
3) If the boiler room is located against an outside wall
and air openings can communicate directly with the
outdoors, the two openings on the outside wall must
each have a net free area as follows:
Model (Sq. In.) Net Free Area
0030 & 0042 12
0066 18
0090 24
0135 35
0180 45
5
Location of the openings is the same as in the
previous case - that is, within 12" of the top, and within 12"
of the bottom of the enclosure. If horizontal ducts are
used, the area must be doubled and the duct area shall
not be less than the area of the openings they connect,
and in no case shall the smallest dimension be less than
3".
VENTING CONNECTIONS
These boilers have built-in drafthoods. Vent piping
the same size or larger than the drafthood outlet is
recommended; however, when the total vent height
(drafthood outlet to vent terminal) is at least ten (10)
feet, the vent pipe size may be reduced by one size only
as specified in Chapter 10 of the latest edition of the
National Fuel Gas Code, ANSI Z 223.1. As much as
possible, avoid long horizontal runs of vent pipe and too
many elbows. If installation requires horizontal runs, the
vent pipe must have a
minimum of 1/4 inch per foot rise
and should be supported at not less than five foot
intervals. Maximum vent connector horizontal length
shall be 1-1/2 feet (18 inches) for each inch of connector
diameter as follows.
Model Vent Connector Max Horizontal
Diameter Length - FT
30 & 42 4" 6'
66 & 90 5" 7.5'
135 6" 9'
180 7" 10.5'
Gas vents supported only by the flashing and extend-
ing above the roof more than five feet should be securely
guyed or braced to withstand snow and wind loads. We
recommend use of insulated vent pipe spacer through the
roofs and walls.
For protection against rain or blockage by snow, the
vent pipe must terminate with a listed vent cap which
complies with the local codes or, in the absence of such
codes, to the latest edition of the National Fuel Gas
Code, ANSI Z 223.1.
The discharge opening must be a minimum of two
feet vertically from the roof surface and at least two (2)
feet higher than any part of the building within ten (10)
feet. Vent stack shall be at least five (5) feet in vertical
height above the drafthood outlet. The vent cap location
shall have a minimum clearance of four (4) feet horizon-
tally from, and in no case above or below, unless a 4-foot
horizontal distance is maintained, from electric meters,
gas meters regulators and relief equipment.










