Dimensions Guide
Manuals
Brands
Redibase Manuals
Shower Bases
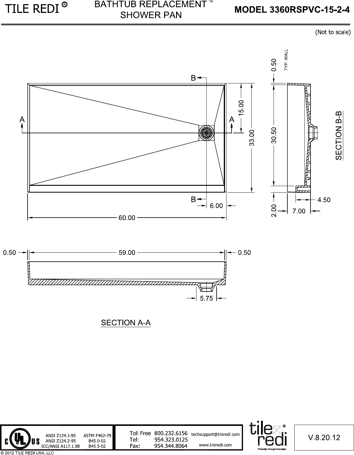
3360RSPVC-15-2-4
1
1
Summary of content (1 pages)
PAGE 1