Digital Amplifier Specification Sheet

Rev.1.00 2003.05.08
page 22 of 23
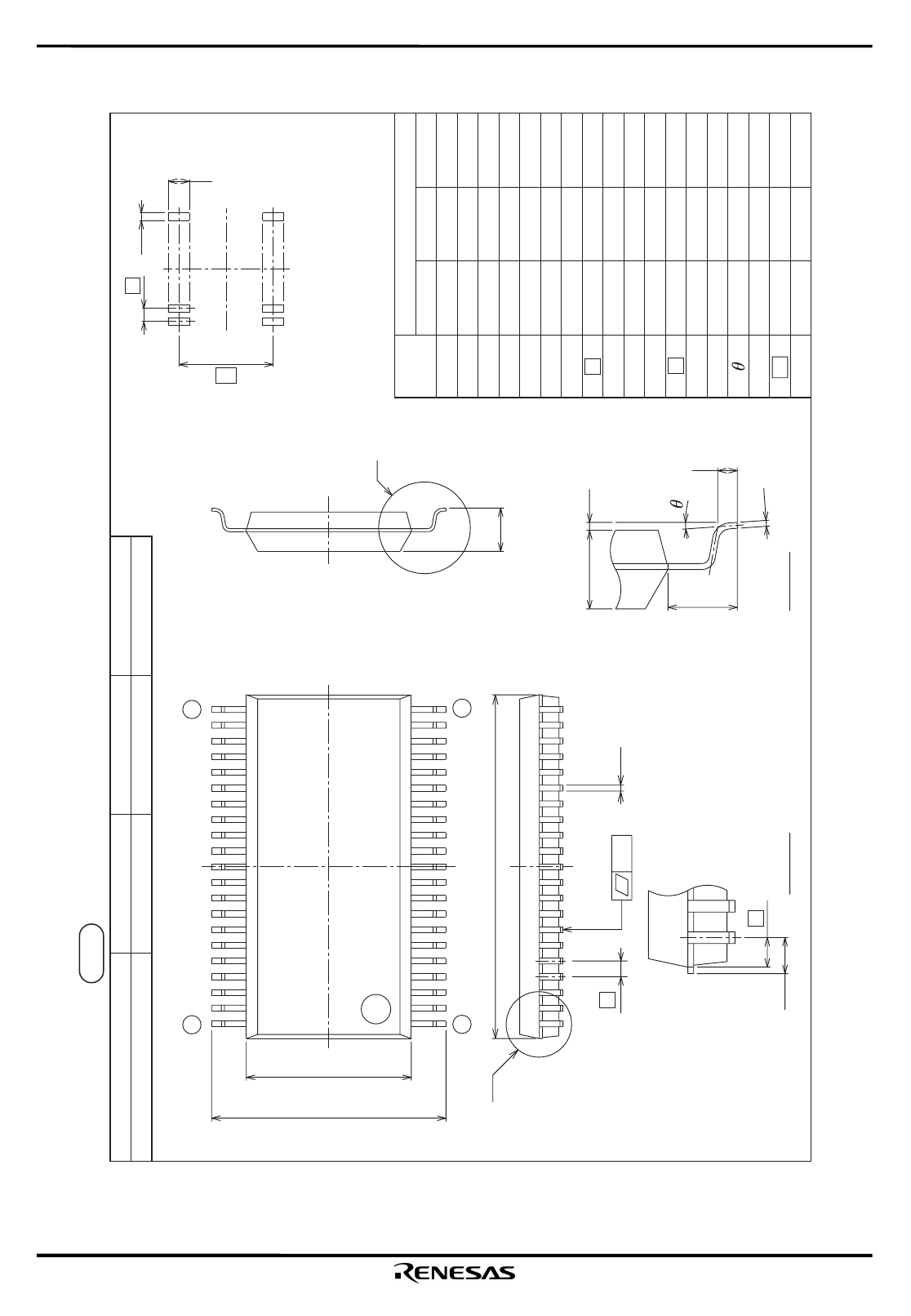
M65881AFP
DETAILED DIAGRAM OF PACKAGE OUTLINE
SSOP42-P-450-0.80
Weight(g)
––
JEDEC Code
EIAJ Package Code
Lead Material
Cu Alloy+42 Alloy
42P2R-E Plastic 42pin 450mil SSOP
Symbol
Min Nom Max
A
A
2
b
c
D
E
L
L
1
y
Dimension in Millimeters
H
E
A1
I2
–
–
.250
.050
.130
.317
.28
–
.6311
.30
–
–
–
.271
–
–
.02
.30
.150
.517
.48
.80
.9311
.50
.7651
–
.4311
–
.42
–
–
.40
.20
.717
.68
–
.2312
.70
–
.150
–
b
2
–.50–
–
0° –10°
e
e1
e
b2
e1
I2
Recommended Mount Pad
–
–
Z1
0.75
–
–
0.9
z
MMP
42 22
21
1
HE
E
e
y
F
A
A
2
A1
L1
L
c
Detail F
G
b
D
Detail G
z
Z1










