User Manual

Series PA/F, PA/S Page 14
9510-060-en Revision 02
TM 7165 Edition 06/2008
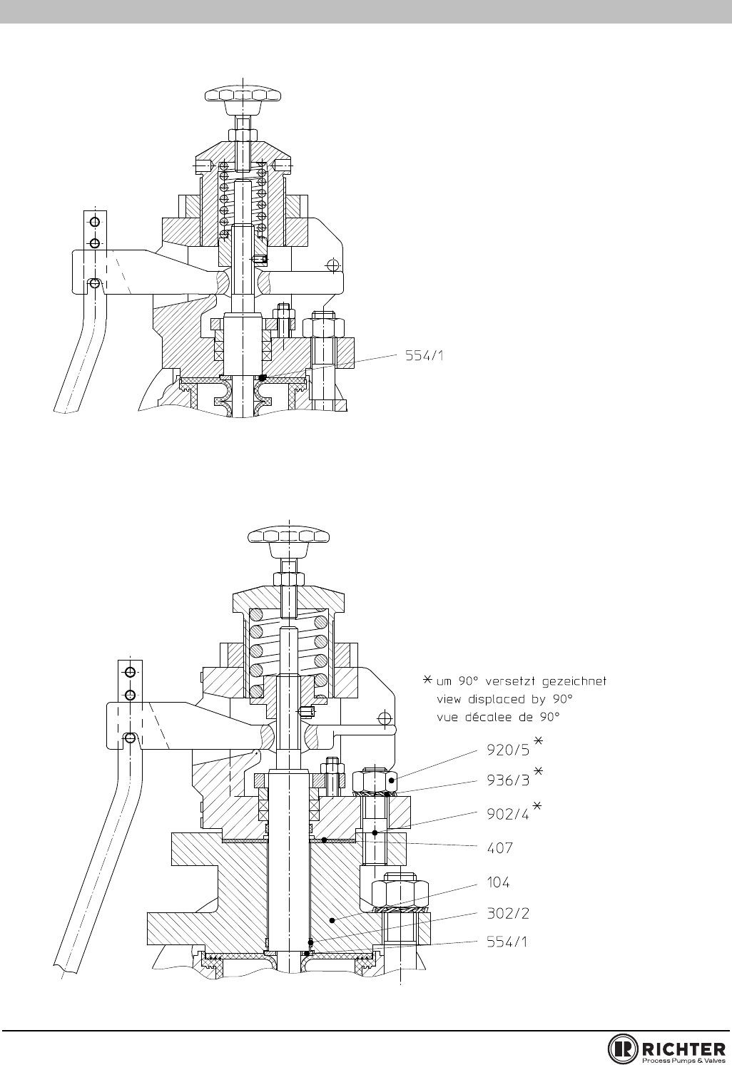
10.3 Details PA/F DN 25 and DN 40
PA/F DN 25
PA/F DN 40