Infinity 24e Continuous Flow Water Heater User's Manual
Manuals
Brands
Rinnai Manuals
Water Heater
24e
1
2
3
4
5
6
7
8
9
10
9
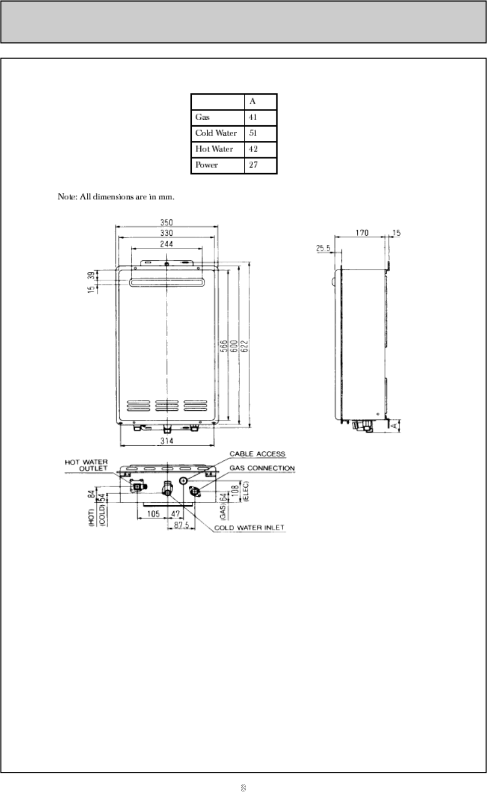
DIMENSIONS
1
...
...
7
8
9
10
11
...
...
39