Operation Manual
Manuals
Brands
Robland Manuals
Other
NXSD 410
81
82
83
84
85
86
87
88
89
90
1
...
...
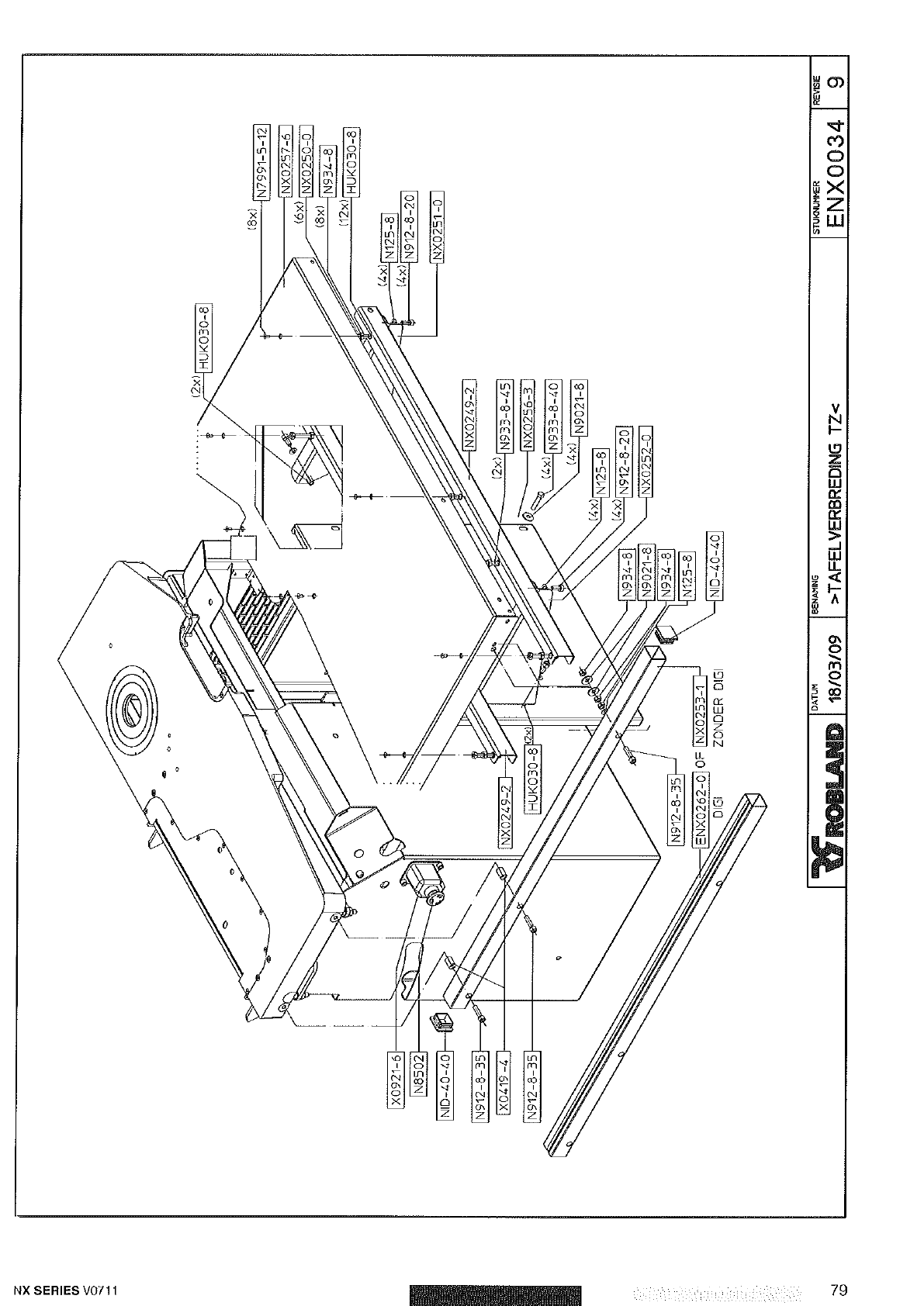
79
80
81
82
83
...
...
100