User Manual
Table Of Contents
- 1756-UM532A-EN-P
- Important User Information
- Table of Contents
- Purpose of This Manual
- Preface
- 1756-DH485 Module Overview
- Overview of the DH-485 Network
- Introduction
- DH-485 Network Description
- DH-485 Network Protocol
- DH-485 Token Rotation
- DH-485 Network Initialization
- Devices that Use the DH-485 Network
- 1747-AIC Isolated Link Coupler for DH-485
- 1761-NET-AIC Advanced Interface Converter Product Overview
- Operating Modes
- Device Compatibility
- Misconception about the 1761-NET-AIC Converter
- 1747-UIC USB to DH-485 Interface Converter
- Example System Configuration
- Important Planning Considerations
- Additional Resources
- Use Data Highway 485 Network
- Use RSLinx Software to Create a Routing Table
- Communicate from an SLC 5/03 Controller to a Logix Controller over a DH-485 Network
- Communicate Between SLC Controllers over DH+ and DH485 Networks
- Communicate Between a PLC-5 Controller and a Remote SLC 5/03 Controller over Multiple DH-485 Networks
- Communicate from an SLC 5/05 Controller to an SLC 5/03 Controller over an EtherNet/IP Network
- Communicate to a SLC 5/03 Controller on a DH-485 Network
- Communicate from a Logix Controller to an SLC 5/03 Controller over EtherNet/IP and DH-485 Networks
- Specifications
- Troubleshoot the 1756-DH485 Module
- Index
- How Are We Doing?
- Rockwell Automation Support
- Backcover

Publication 1756-UM532A-EN-P - May 2006
3-12 Use Data Highway 48 5 Ne two rk
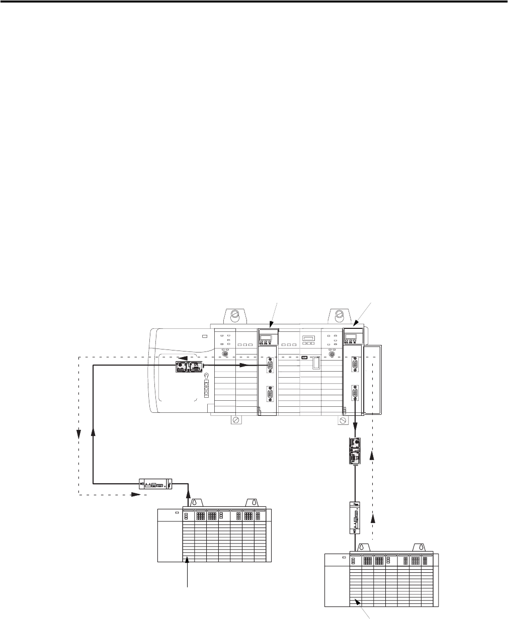
Application Timeout
When an error occurs while sending a message to a remote link, it appears to
the sending station as an application timeout because error messages are not
routed back. When an error occurs during routing, it may be dropped.
For example, if an SLC 5/03 controller sends a message to another SLC 5/03
controller, and the second SLC 5/03 controller’s buffers are full, three
things happen:
• The SLC 5/03 controller refuses the message because the buffers are
full.
• The originator detects an application timeout when no reply is received.
• The originator increments its error count.
The SLC 5/03 controller can retry to send the message later. This figure
shows an example of an application timeout.
Example of an Application Timeout
DH485
DH485
ControlLogix Chassis
44068
Routed messages sent
over the bac kplane.
1756-DH48 5 Module
SLC 5/03 Controller
1756-DH485 Module
SLC 5/03 controller detects an
application timeout and
increments an error bit.
DH-485 Link 1
DH-485
Link 2
SLC 5/03 controller
buffers are full.
AIC+
AIC+
AIC
AIC