Safety Switch Manual

1
Einbauanleitung
Installation Instructions
Notice d'installation
Deutch /
Français
Description
The Cadet 3 is a positive mode, tongue operated interlock switch. It interlocks the guard to
the machine control system and ensures machine power is isolated and remains isolated
whilst the guard is open.
Beschreibung
Der Cadet 3 ist eine Sicherheitszuhaltung mit Zungenbetätigung. Er
verriegelt die Schutztür über das Steuersystem der Maschine und
gewährleistet, daß die Versorgungsspannung zur Maschine getrennt wird
und solange getrennt bleibt, wie die Schutztür geöffnet ist.
Description
Le Cadet 3 est une gâche électromagnétique à broche pour le verrouillage des
portes de machine. Il assure le verrouillage du système de commande de la
machine et ainsi que la mise hors tension, et le maintien hors tension, de la
machine tant que les portes de protection sont ouvertes.
RETAIN THESE INSTRUCTIONS
Installation must be in accordance with the following steps and must be
carried out by suitably competent personnel.
This device is intended to be part of the safety related control system of a
machine. Before installation, a risk assessment should be performed to
determine whether the specifications of this device are suitable for all
foreseeable operational and environmental characteristics of the machine to
which it is to be fitted.
At regular intervals during the life of the machine check whether these
characteristics foreseen remain valid and inspect this device for evidence of
accelerated wear, material degradation or tampering. If necessary the device
should be replaced . Guardmaster cannot accept responsibility for a failure of
this device if the procedures given in this sheet are not implemented or if it
is used outside the recommended specifications in this sheet.
The interlock is not to be used as a mechanical stop.
Guard stops and guides must be fitted.
Exposure to shock and/or vibration in excess of those stated in
IEC 68 part: 2-6/7 should be prevented.
Adherence to the recommended maintenance instructions forms part of the
warranty.
DIESE ANLEITUNG AUFBEWAHREN
Der Einbau muß durch einen entsprechend qualifizierten Mitarbeiter
erfolgen, und folgende Schritte müssen hierbei beachtet werden.
Dieses Gerät ist für den Einsatz als Teil des sicherheitsbezogenen
Steuerungssystems einer Maschine gedacht. Vor dem Einbau sollte eine
Risikoanalyse durchgeführt werden, um festzustellen, ob sich dieses
Geräts technisch für alle voraussehbaren Betriebs- und
Umweltsbedingungen der Maschine, für die es bestimmt ist, eignet.
Prüfen Sie in regelmäßigen Abständen während der Lebensdauer der
Maschine, ob diese voraussehbaren Bedingungen auch weiterhin gelten,
und überprüfen sie dieses Gerät auf vorschnellen Verschleiß,
Qualitätsverlust des Materials oder unbefugte Eingriffe. Ggf. sollte das Gerät
ausgewechselt werden. Guardmaster kann keine Haftung für ein Versagen
dieses Geräts übernehmen, wenn die auf diesen Seiten aufgeführten
Verfahren nicht angewandt werden oder wenn das Gerät nicht laut der
empfohlenen Spezifikationen verwendet wird. Der Sicherheitsschalter darf
nicht als mechanische Sperre verwendet werden. Schutzgittersperren und -
leitvorrichtungen müssen angebracht werden.
Das Gerät sollte keinen Stößen und/oder Erschütterungen ausgesetzt
werden, die stärker sind als die in IEC68 Teil: 2-6/7 beschriebenen.
Die Einhaltung der empfohlenen Wartungsanweisungen ist Teil der Garantie.
INSTRUCTIONS A RETENIR
L'installation doit être menée conformément aux étapes suivantes et doit
être effectuée par un personnel expérimenté.
Cet appareil est destiné à faire partie du système de contrôle de sécurité
d'une machine. Avant l'installation, on doit procéder à une estimation de
risque afin de déterminer si les spécifications de l'appareil conviennent à
toutes les caractéristiques prévisibles de fonctionnement et d'environnement
de la machine à laquelle il doit être fixé.
A intervalles réguliers durant la vie de la machine, vérifiez si les
caractéristiques prévues sont toujours valables et inspectez de l'appareil afin
de détecter toute détérioration accélérée, toute dégradation du matériel ou
manipulation frauduleuse. Si nécessaire, remplacez l'appareil. Guardmaster
n'est pas responsable d'un défaut de l'appareil si la procédure décrite dans
cette notice n'a pas été appliquée ou si le l'appareil est utilisé sans tenir
compte des recommandations.
L'interrupteur ne doit pas être utilisé comme un arrêt mécanique.
Les butées de porte et les dispositifs de guidage doivent être fixés.
Evitez l'exposition aux chocs et/ou aux vibrations dépassant les limites
données dans la norme CEI 68 paragraphe 2-6/8.
Suivre rigoureusement les instructions de maintenance pour valider la
garantie constructeur.
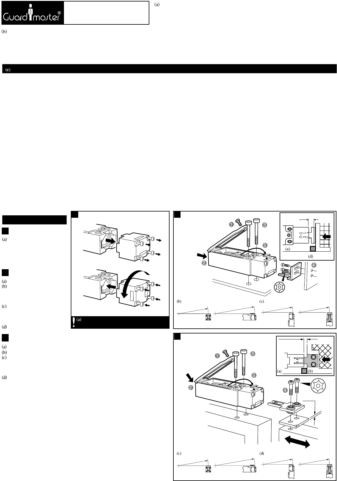
CADET 3
COMPACT TONGUE OPERATED INTERLOCK SWITCH
KOMPAKTER VERRIEGELUNGSSCHALTER MIT ZUNGENBETÄTIGUNG
GÂCHE ÉLECTROMAGNÉTIQUE À BROCHE COMPACTE
GD2
OPTION
2a
2b
M4
1 x M16
or 1 x Pg 11
1 x M16
or 1 x Pg 11
1
2a
Die Schrauben am Schalterkopf müssen voll
angezogen sein, bevor der Schalter an den
Steuerkreis der Maschine angeschlossen
wird. /
Les vis de la tête du capteur doivent
être sérrées avant que le capteur soit
connecté au circuit de contrôle de la machine.
MIN.R 200mm
Minimum Operating Radius End-Entry using 90° actuatorMinimum Operating Radius Front-Entry using 90° actuator
MIN.R 150mm
MIN.R 150mm
MIN.R 150mm
MIN.R 200mm
Minimum Operating Radius End-Entry using flat actuatorMinimum Operating Radius Front-Entry using flat actuator
MIN.R 150mm
MIN.R 150mm
MIN.R 150mm
The switch head screws must be fully tightened before the
switch is connected to the machine control circuit.
M4
2 x M4
2.5mm
M4
Schutztür-Arretierungen
/
Butée de porte
Mindestbetriebsradius-Vordereingang
mit 90° Betätiger
/
Rayon minimal
d’ouverture - entrée avant - avec émetteur
90
°
Mindestbetriebsradius-Endeingang mit
90° Betätiger
/
Rayon minimal
d’ouverture - entrée arrière - avec émetteur
90
°
Schutztür
/
Porte de protection
2b
Schutztür-Arretierungen
/
Butée de porte
Schutztür
/
Porte de protection
Mindestbetriebsradius-Vordereingang
mit flachem/flexiblem Betätiger
/
Rayon minimal d’ouverture - entrée avant -
avec émetteur plat / flexible
Mindestbetriebsradius-Endeingang mit
flachem/flexiblem Betätiger
/
Rayon
minimal d’ouverture - entrée arrière - avec
émetteur plat / flexible
6mm min
7.5mm max
GUARD STOP
GUARD DOOR
1mm min
2.5mm max
GUARD STOP
GUARD DOOR