User`s manual
Table Of Contents
- Safety Precautions
- Table of contents
- Chapter 1: Outline
- 1-1 Features
- 1-2 Controller
- 1-3 Measurement program
- [1] Positional deviation measurement
- [2] Degree of match inspection
- [3] Lead inspection
- [4] BGA/CSP inspection (IV-S32M/S33M)
- [5] Area measurement by binary conversion
- [6] Object counting by binary conversion
- [7] Object identification by binary conversion
- [8] Point measurements
- [9] Distance and angle measurement
- [10] Multiple position measurement (IV-S33M)
- [11] Multiple degree of match inspection (IV-S33M)
- Chapter 2 : Precautions for Use
- Chapter 3 : System Configuration
- Chapter 4 : Part Names and Functions
- Chapter 5 : Connection and Installation Methods
- Chapter 6 : Setting and Operating Outlines
- Chapter 7 : Simplified Menu Operation
- 7-1 Operation screen
- 7-2 Image display
- 7-3 Setting functions that are different with each controller
- 7-4 Setting procedures
- 7-5 Setting the operation conditions
- 7-6 Setting object types
- 7-7 Setting the shutter speed
- 7-8 Setting the positioning conditions
- 7-9 Setting the existence inspection conditions
- 7-10 Measurement triggering
- 7-11 Saving data
- 7-12 Specify the system conditions
- Chapter 8 : Specifications
- Chapter 9 : Operation Examples
- Glossary
- Appendix
- Alphabetical Index

5-31
Connection and Installation Methods
5
*
*
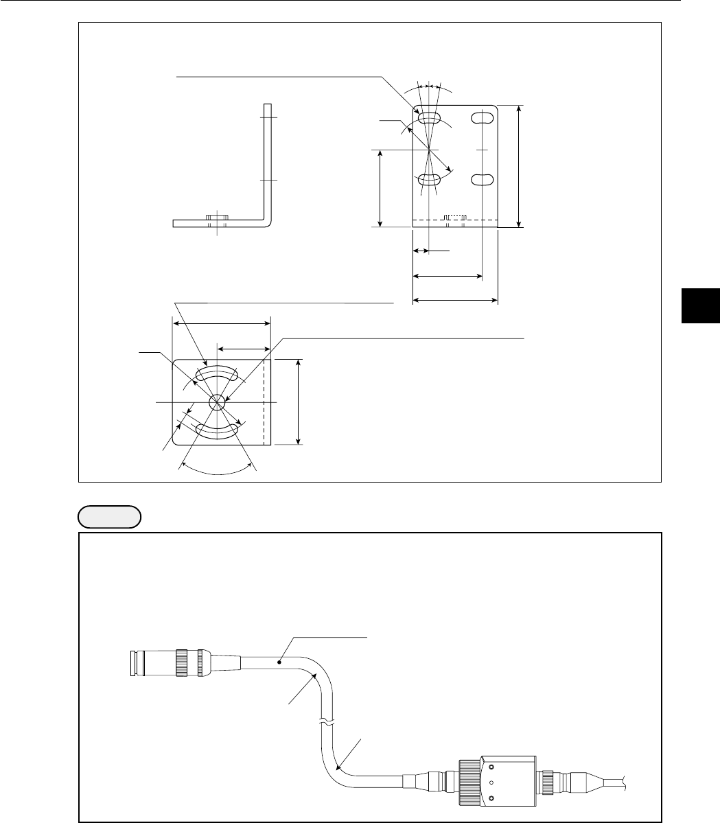
Head cable
* Bending radius: Min. 40 mm
- External dimensions of camera angle bracket
28
22.5
5.5
39
31
17
10°10°
60°
20
20
3.2
28
25
1/4-20 UNC threaded hole
(for attachment to the mounting surface)
2 slotted holes 3.2 mm wide
(for attachment to the mounting surface)
4 slotted holes wide
(for securing on the camera body)
(Unit: mm)
- When the camera head cable is bent, its bending radius should be larger than 40 mm.
If the camera cable will be bent repeatedly during operation, design the cable layout so that
the bending radius is 75 mm or more and use components that can be flexed up to 2 million
times.
Note










