Operation Manual
Manuals
Brands
Siedle Manuals
Intercoms
TC 711-24 ISDN
1
2
3
4
5
6
7
8
9
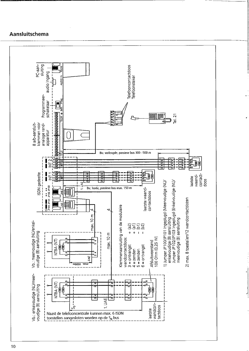
10
1
...
...
8
9
10
11
12
...
...
103