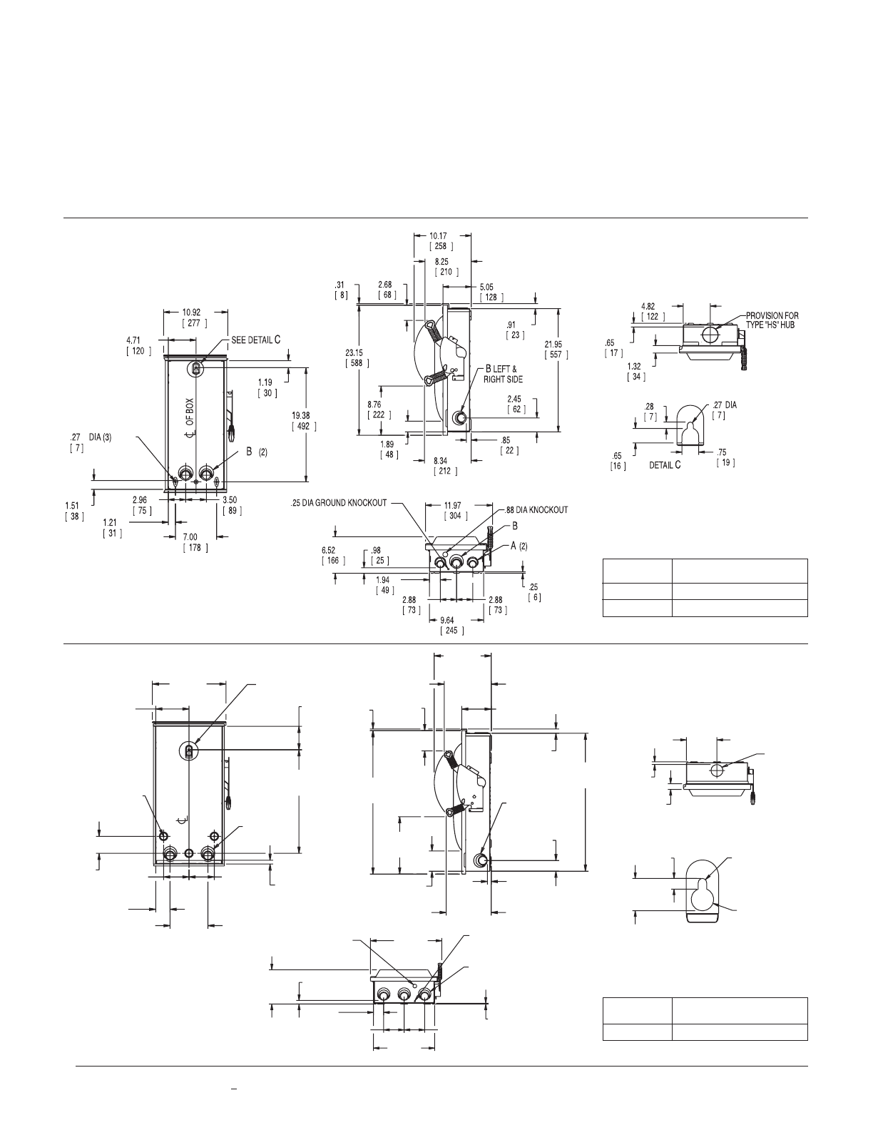
Specification

Type 3R (Outdoor)
100 Amp General and Heavy Duty
(also 60A Oversized Heavy Duty)
200 Amp General and Heavy Duty
KNOCKOUT CONDUIT
CODE SIZE
A (Tangential) .75 1.00 1.25 1.50
B (Tangential) 1.00 1.25 1.50 2.00
29.90
759[]
2.31
59[]
.81
21[]
.91
23[]
4.37
111[]
9.74
247[]
4.39
112[]
10.17
258[]
12.33
313[]
12.42
315[]
6.36
162[]
.35
9[]
31.07
789[]
A
LEFT &
RIGHT SIDE
15.94
405[]
3.10
79[]
8.20
208[]
5.10
130[]
DIA (4)
.33
8[]
7.19
183[]
.81
21[]
3.68
93[]
5.50
140[]
5.50
140[]
22.43
570[]
A
(2)
OF BOX
SEE DETAIL
C
7.30
185[]
.65
17[]
1.32
34[]
PROVISION FOR
TYPE "HS" HUB
8.19
208[]
.87
22[]
2.45
62[]
4.88
124[]
4.88
124[]
14.61
371[]
.20
5[]
16.99
432[]
.25 DIA GROUND KNOCKOUT
A
(3)
.88 DIA KNOCKOUT
1.44
37[]
.47
12[]
DIA.38
10[]
DIA1.00
25[]
DETAIL
C
KNOCKOUT CONDUIT
CODE SIZE
A (Tangential) 1.25 1.50 2.00 2.50
Figure 17
Figure 18
38
Detailed Dimension Drawings
Siemens Type VBII Safety Switches
Dimensions shown in inches and millimeters [ ].
Dimensions shown accurate to
+
1/8 inch.
➀ Dimensions shown apply to heavy duty switches only.
➀
➀
➀
➀
➀
➀
➀
➀
➀
➀
➀
➀