Specification

45
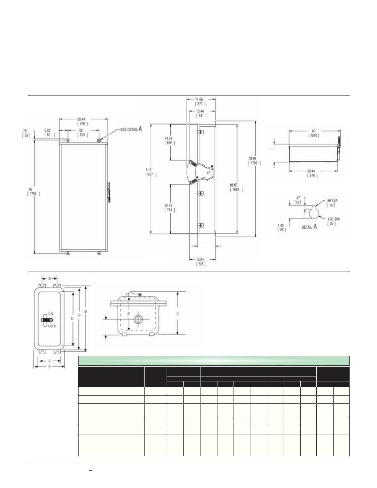
Dimensions shown in inches and millimeters [ ].
Dimensions shown accurate to
+
1/8 inch.
Type 4X (Stainless); 12 (Industrial)
800 / 1200 Amp Heavy Duty Fusible
Types 7 and 9 (Figure 2)
Figure 31
Dimensions Command (inches) Knockouts (4)
Breaker Catalog Mounting Inside Outside Conduit Size
Type Number A B C D E F G H K Std. Max.
ED2, ED4, ED6 EA 5 1/2 13 1/8 5 15/16 10 3/4 5 7/16 9 7/16 14 1/4 6 5/8 1 5/8 1 1/4 1 1/4
HED4, HED6
EB 6 18 6 1/2 16 15 9/16 9 7/8 19 3/8 6 11/16 2 2 2
FXD6, FD6, HFD6, HFXD6, CFD6
JXD2(A), JXD6(A), JD6, SJD6(A)
EC2 10 1/4 22 5/8 11 3/4 20 6 1/2 15 3/8 23 7/8 8 1/4 2 3/4 2 2 1/2
HJD6, HJXD6(A), HHJD6, EC4 10 1/4 22 5/8 11 3/4 20 6 1/2 15 3/8 23 7/8 8 1/4 2 3/4 2 1/2 3
HHJXD6, SHJD6 EE 8 1/2 27 1/8 10 3/4 24 1/8 7 3/4 13 7/8 27 1/4 9 9/16 4 3 4
LXD6(A), LD6(A), SLD6(A),
HLD6(A), HLXD6(A), HHLD6, ED6 11 7/8 40 3/4 13 3/8 37 7/8 7 7/8 18 1/8 42 5/8 9 7/8 3 5/8 4 4
HHLXD6, SHLD6
No knockouts in the enclosures.
K
9.67
[ 246 ]
9.67
[ 246 ]