
Confidential & Proprietary 27/32
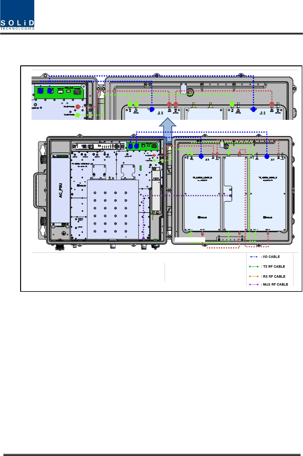
Refer to the figure below for cabling in order to service 1900P_M + L2600F_M or AWS13_M +
L2600F_M Band Expansion.
Figure 4.16 – Cabling of N2RDU_1900P_M + N2RDU_L2600F_M or N2RDU_AWS13_M +
N2RDU_L2600F_M (MIMO Band Expansion)