Spencer Power Mizer Multistage Centrifugal Cast Blowers Manual

5
Use lifting eyes supplied on the blower base, along with a
suitable quad leg chain sling or spreader bars with the smallest
practical angle between the sling legs to minimize stress.
CAUTION: Do not use slings around the blower; they will
bend or stress the tie rods. Never lift the blower by its
shaft. Do not disturb the oilers or any electrical devices.
Storage
If a blower is stored for an extended period before use or
between uses, protect it from dampness, dirt and vibration.
Suspend bags of silica gel desiccant in the inlet and dis-
charge. Cover the entire blower if possible or at least cover
the inlet and discharge openings to keep out foreign matter.
Rotate the blower shaft a few times by hand every week,
keeping a log.
CAUTION: Failure to comply with the required storage
provisions, including weekly shaft rotations, will void the
warranty.
Unpacking
1. Uncrate the blower, saving all literature, boxes and parts.
2. Remove inlet and discharge protective caps and all packing
materials.
3. Use the packing slip to check off and confirm the presence
of all ordered components.
4. Read any instructional and warning labels on the machine
before installation and operation.
V. Installation
NOTE: If any problems are encountered during installation or
startup, consult your local Spencer Representative.
Location
CAUTION: Do not locate blower or controls where they
will be subject to ambient temperatures above 104 °F (40
°C) during operation, unless specially equipped for higher
temperatures.
Power Mizer blowers may be installed outdoors, preferably
under cover, or indoors. When choosing an indoor location, be
sure there is sufficient ventilation to allow unrestricted airflow
to the blower. In addition, it is advisable to leave several feet
of space around the blower and motor for ease of servicing.
Inaccessibility can prove costly.
Consideration should be given to the noise generated by this
equipment and its contribution to the ambient noise level.
Optional noise reduction accessories include blower casing
sound attenuation jackets, filter silencers or silencers for the
blower inlet and/or discharge, and silencers for the motor.
NOTE: Duct noise attenuation is a customer responsibility.
Foundation
CAUTION: Oil-lubricated machines must be level or oil
level readings will be inaccurate.
A level concrete pad is recommended, although any flat level
surface that can support the machine weight is satisfactory.
The blower base should be placed level on the furnished
isolation pads or equivalent. The number and location of pads
are important. Pads must be located directly under a support
for maximum performance. Locate one pad under each
supporting member of the blower.
Locate the motor pads under the vertical motor base sup-
ports, not necessarily directly under the motor feet. Four pads
per side will avoid any springboard effect. Each pad must be
shimmed, if necessary, to ensure that it is carrying its share of
the load. If lag bolts and nuts are used to restrain the blower,
hand-tighten only.
NOTE: Spencer does not favor grouting; however grouting
may be used consistent with established practice. Do not use
isolation pads when grouting.
Blower Setup
CAUTION: Make sure blower inlet and discharge ports
are unobstructed before connecting piping to blower.
1. Piping
All piping connected to the blower should be of ample size
to minimize frictional loss. All system joints must be airtight;
leaky pipes waste air and power.
All piping must be properly aligned and supported to avoid
stress on the blower and restrained to prevent movement
away from the blower caused by air pressure. Flexible connec-
tors must be used to connect piping to the blower.
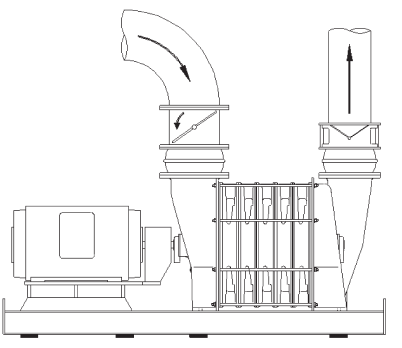
NOTE: The diagram above shows the proper orientation of a
piping elbow in-line with the blower shaft. The butterfly valve
should have its shaft at right angles to the blower shaft and
the valve should open as indicated (counterclockwise in this
example). These steps will assure uniform loading of the
blower’s first stage.
2. Flexible Connectors
CAUTION: Connected piping must not touch the blower.
Use flexible connectors (expansion joints or rubber
sleeves) on both the inlet and discharge to create an
isolating gap between blower and piping.
Inlet
Discharge
Check
Valve
Flexible
Connectors
Butterfly
Valve
(Shim if necessary.)
Recommended Pad Locations










