Use and Care Manual

© 2011 Schneider Electric
All Rights Reserved
Commercial Pressure and Float Switches for Power Circuits
Float Switches—Class 9036, 9037, and 9038
54
03/2011
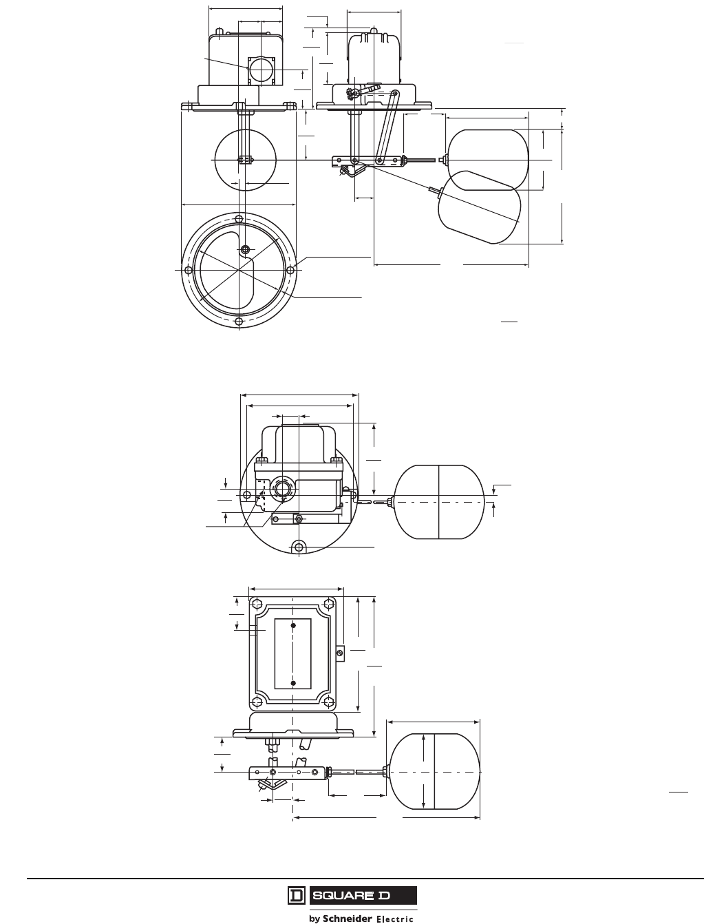
Figure 8: Type EG Dimensions
Figure 9: Type ER/EW Dimensions
R
H
F
4.5
114
2.63
67
4.19
106
3.63
92
DIA.
0.41
10
4.41
112
5.13
130
0.13
3
3.69
94
0.97
25
1.97
50
3.97
101
0.25
6
2.69
68
2.5
64
2.38
60
5.75
146
1.11
28
1.06
27
Wide Bead
4 Holes Dia.
Shown with Rod Kit and Float Kit installed,
with Pattern for hole in tank.
Recommended hole size =
diameter.
NEMA 1 Enclosure, Post
Net Weight 4 lb (1.8 kg)
Two 3/4-1/4 in.
openings for
1/2 in. conduit
on both sides
CL of Flange
CL of Flange
of Float
diameter
dia.
dia.
**
Short length
2.63
67
0.97
25
3.63
92
4.5
114
H
R
0.41
10
3.44
87
0.31
8
4 Holes
Dia.
0.5
C
L
of Flange
C
L
of Float
1.13
29
0.81
21
1.69
43
5.59
142
6.81
173
5.13
130
5.75
146
4.59
117
Dia.
Dia.
Dia.
13
Two 3/4-14 in.
openings for
1/2 in. conduit
Dual Dimensions:
in.
mm










