Assembly instructions for side wall attachment

STEMA Metalleichtbau GmbH Telefon: 0 900/13 09 40 01
Riesaer Straße 50
Gebührenpflichtige Telefonnummer 0,96 €/min
01558 Großenhain
aus dem deutschen Festnetz, Mobilfunk kann abweichen
Fax: 0 35 22/ 30 94 15
eMail: info@stema.de
Seite 3 von 5 März 2008
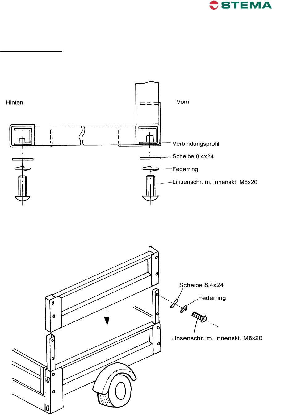
Montagereihenfolge:
1. Verbindungsprofile in die Kastenecken einschrauben.
2. Linken und rechten Bordwandaufsatz von oben auf die Verbindungsprofile aufstecken
und mit diesen verschrauben.





