Datasheet

Table Of Contents
STM32F105xx, STM32F107xx Package characteristics
Doc ID 15274 Rev 6 85/104
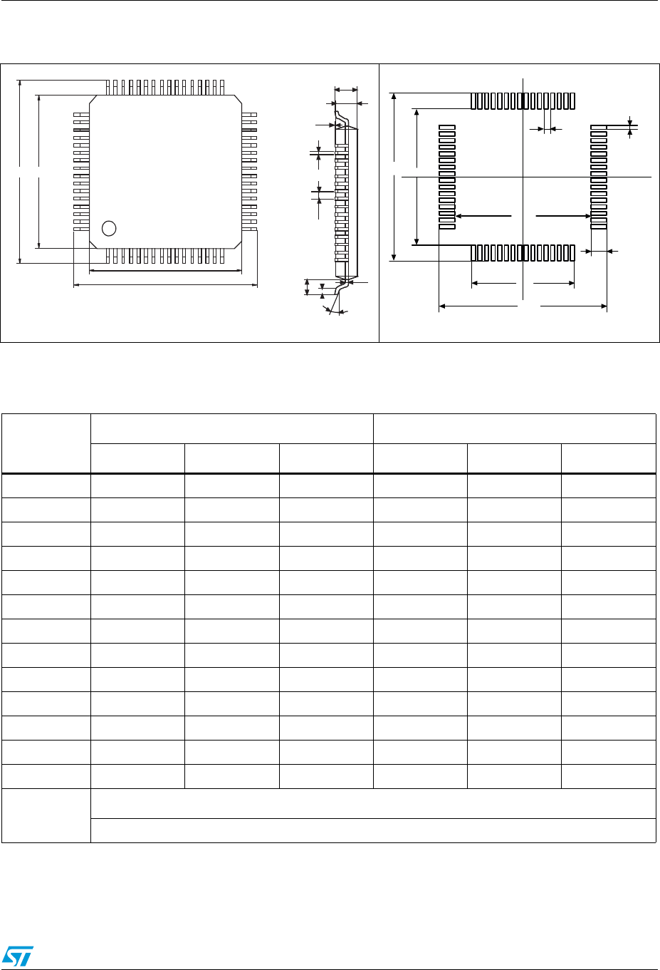
Figure 43. LQFP64 – 64 pin low-profile quad flat
package outline
(1)
Figure 44. Recommended footprint
(1)(2)
1. Drawing is not to scale.
2. Dimensions are in millimeters.
A
A2
A1
c
L1
E
E1
D
D1
e
b
ai14398b
L
48
3249
64 17
116
1.2
0.3
33
10.3
12.7
10.3
0.5
7.8
12.7
ai14909
Table 60. LQFP64 – 64 pin low-profile quad flat package mechanical data
Dim.
mm inches
(1)
Min Typ Max Min Typ Max
A 1.60 0.0630
A1 0.05 0.15 0.0020 0.0059
A2 1.35 1.40 1.45 0.0531 0.0551 0.0571
b 0.17 0.22 0.27 0.0067 0.0087 0.0106
c 0.09 0.20 0.0035 0.0079
D 12.00 0.4724
D1 10.00 0.3937
E 12.00 0.4724
E1 10.00 0.3937
e 0.50 0.0197
θ 3.5° 3.5°
L 0.45 0.60 0.75 0.0177 0.0236 0.0295
L1 1.00 0.0394
N
Number of pins
64
1. Values in inches are converted from mm and rounded to 4 decimal digits.