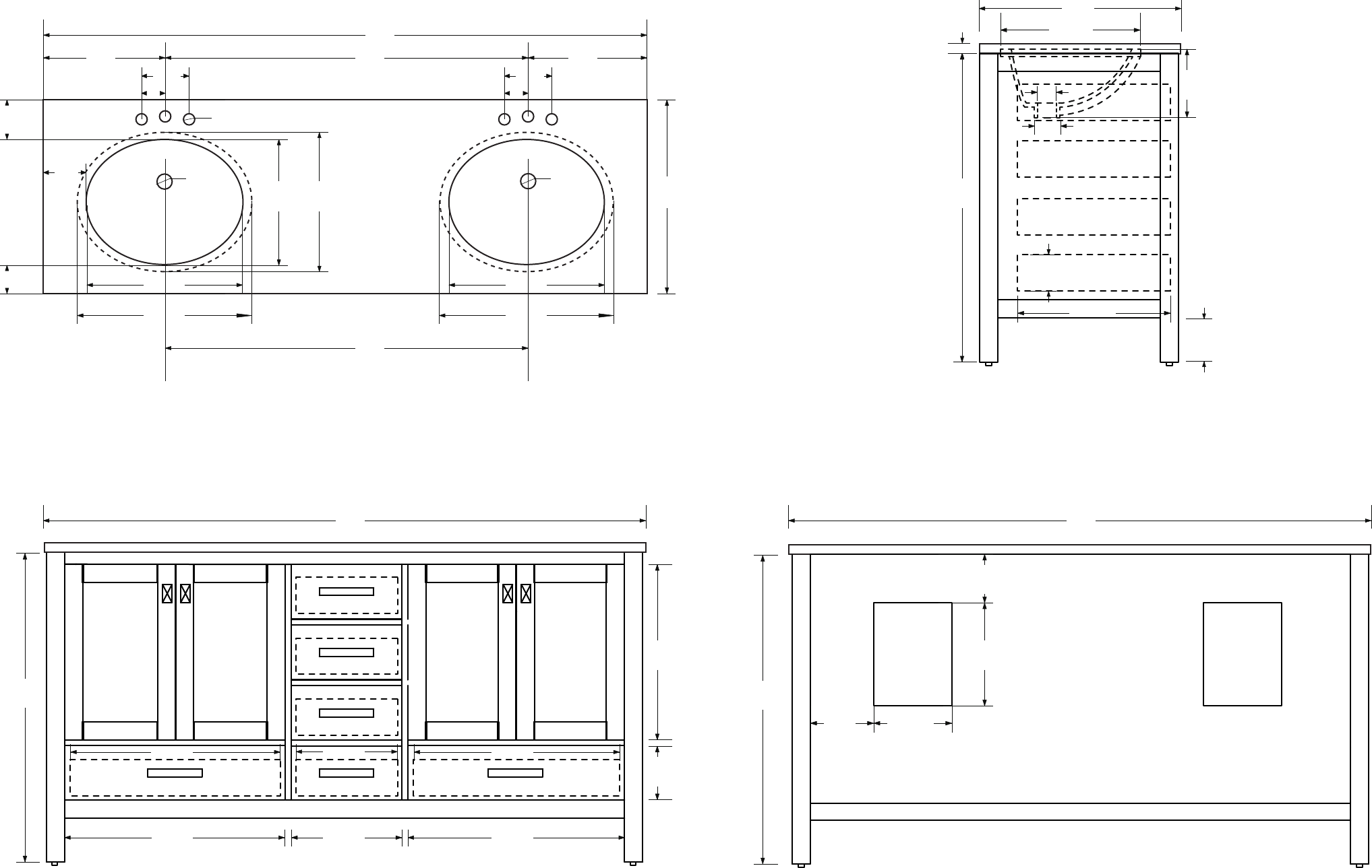
Dimensions Guide

GM-6412-72
TOP VIEW
FRONT VIEW
SIDE VIEW
BACK VIEW
Dimensions are nominal and may vary within tolerances.The measurements are subject to change or cancellation.No responsibility is assumed for use of superseded or voided pages.
9/16”
22”
16 1/8”
19 1/4”
16 1/8”
19 1/4”
24” 24”17 3/4”
17 1/4”
8”
7 1/4”
4”
8”
4”
72”
15 1/2” 15 1/2”41”
41”
72”
72”
4”
3 3/4”
35”
35”
21”
6 1/2”
35”
22”
8 1/8”
16”
15 3/4”
1 3/4”
2 3/4”
23 1/2” 23 1/4”
12 3/8” 16”
5”
4 3/4”
13”
4 1/2”
10”8”
1 3/8”
1 3/4” 1 3/4”