Design Guide

70
|
Sub-Zero Customer Care 800.222.7820
WINE STORAGE
Custom Panel—Integrated
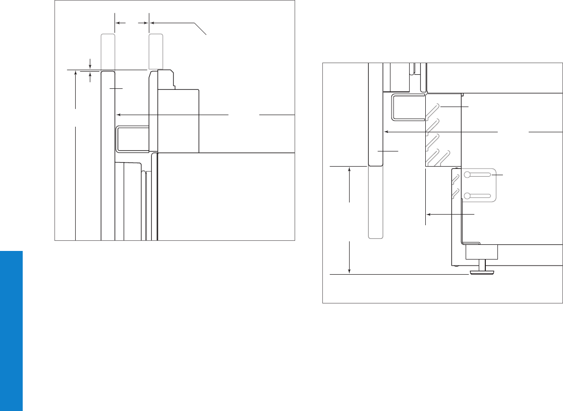
DOOR PANEL HEIGHT
The height of the custom door panel can extend beyond the
typical panel height, provided it does not exceed the weight
limit. Refer to the illustration below.
1
3
/
4
"
(45)
A DECORATIVE VALANCE
CANNOT EXTEND
BEYOND THIS PLANE
DOOR
PANEL
HINGE
24" (610)
TO BACK OF UNIT
84"
(2134)
1
/8" (3)
Upper valance (side view).
TOE KICK CLEARANCE
The height of the toe kick area can extend beyond the
typical toe kick height, provided it does not exceed the
dimensions in the illustration below. Toe kick heights from
2"
(51) to 3
7
/8" (98) require a reduced toe kick accessory
available through an authorized Sub-Zero dealer. For local
dealer information, visit the nd a showroom section of our
website, subzero.com. For questions regarding the installa-
tion, call Sub-Zero customer care at 800-222-7820.
24" (610)
TO BACK OF UNIT
VENTED
LOUVERS
HINGE
**
DOOR
PANEL
1
1
/8" (29)
MAX
TOE KICK
ADJUSTMENT
A DECORATIVE TOE KICK
CANNOT EXTEND
BEYOND THIS PLANE
2" (51)*
TO
6" (152)
FROM
FLOOR
*2" (51) to 3
7
/8" (98) requires sales accessory.
**Column models only.
Toe kick (side view).
UNDERCOUNTER WINE INTEGRATED PRO 48 BUILT-IN










