Design Guide

76
|
Sub-Zero Customer Care 800.222.7820
WINE STORAGE
Custom Panel—WS-30
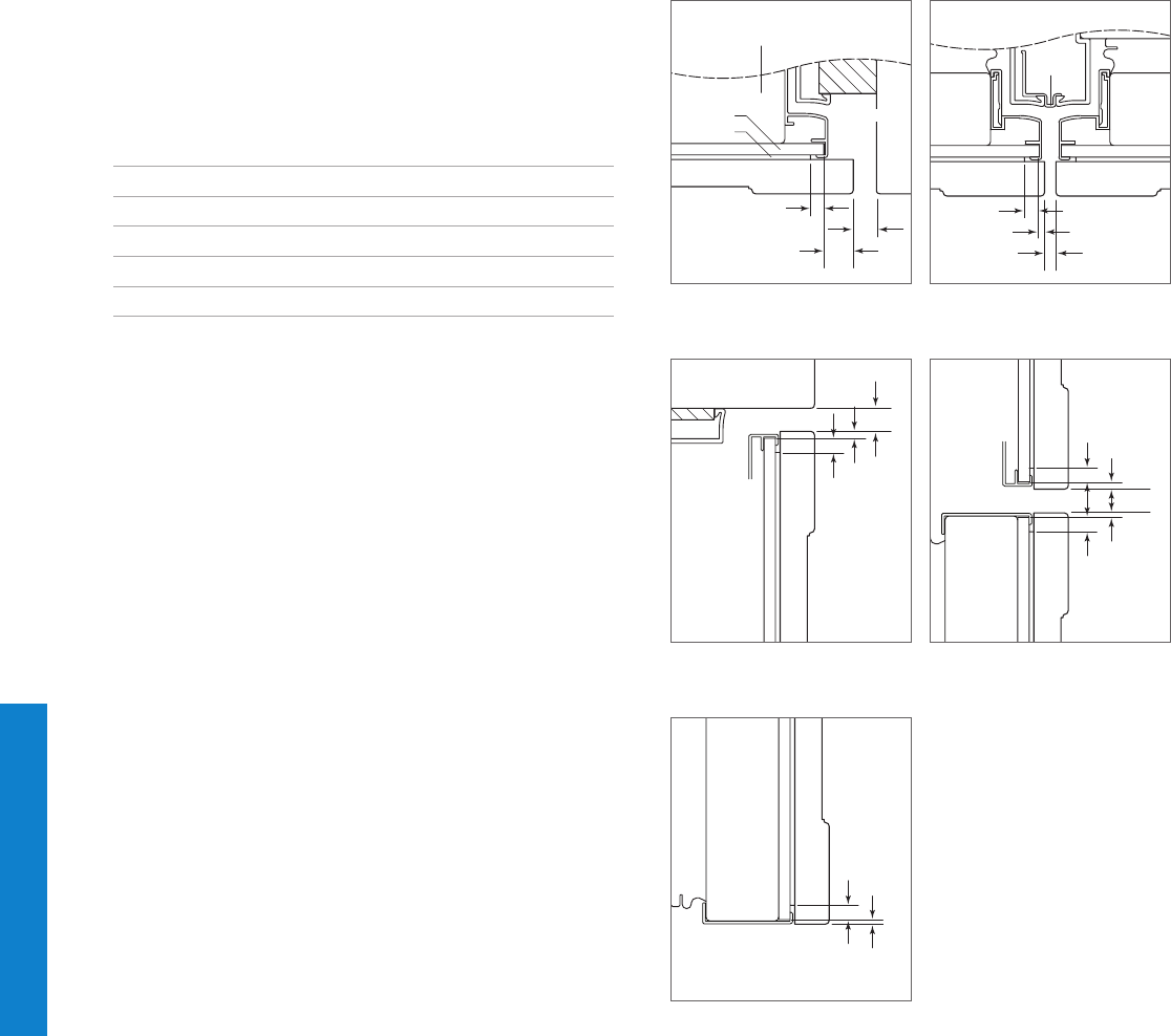
DUAL FLUSH INSET PANEL OFFSET
The illustrations provide panel offsets and reveals for model
WS-30 in a dual ush inset application. Refer to the chart
below for reference to the illustrations.
PANEL OFFSET
ILLUS
Door (hinge) | Grille Sides A
Door (handle) Sides B
Grille Top C
Grille Bottom | Door Top D
Door Bottom E
5
/8"
(16)
5
/8"(16)
5
/
16
"
(8)
1
/2"
(13)
5
/32"
(4)
5
/16"
(8)
5
/
16
"
(8)
3
/32"
(2)
DOOR
DRAWER
5
/16"
(8)
3
/32"
(2)
DOOR /
DRAWER
1
/2"(13)
3
/
32
"
(2)
5
/
16
"
(8)
5
/16"
(8)
5
/
32
"
(4)
GRILLE
DOOR
1
/4" (6)
REVEAL
5
/16" (8)
1
/8" (3)
FLUSH INSET PANEL
SPACER
BACKER
DOOR DOOR
DOOR / DRAWER / GRILLE
1
/
2
"
(13)
5
/16"
(8)
1
/8"
(3)
CABINETRY
GRILLE
TOP VIEW
TOP VIEW
SIDE VIEW SIDE VIEW
SIDE VIEW SIDE VIEW
CABINETRY
DUAL
TRIM
1
/4" (6)
REVEAL
5
/16" (8)
1
/8" (3)
DOOR DOOR
TOP VIEW
Illus. A
Illus. B
5
/8"
(16)
5
/8"(16)
5
/
16
"
(8)
1
/
2
"
(13)
5
/32"
(4)
5
/16"
(8)
5
/16"
(8)
3
/32"
(2)
DOOR
DRAWER
5
/16"
(8)
3
/32"
(2)
DOOR /
DRAWER
1
/2"(13)
3
/32"
(2)
5
/16"
(8)
5
/16"
(8)
5
/32"
(4)
GRILLE
DOOR
1
/4" (6)
REVEAL
5
/16" (8)
1
/8" (3)
FLUSH INSET PANEL
SPACER
BACKER
DOOR DOOR
DOOR / DRAWER / GRILLE
1
/2"(13)
5
/16"
(8)
1
/8"
(3)
CABINETRY
GRILLE
TOP VIEWTOP VIEW
SIDE VIEW
SIDE VIEW
SIDE VIEW SIDE VIEW
CABINETRY
5
/8"
(16)
5
/8"(16)
5
/16" (8)
1
/
2
"
(13)
5
/32"
(4)
5
/16"
(8)
5
/16"
(8)
3
/32"
(2)
DOOR
DRAWER
5
/16"
(8)
3
/32"
(2)
DOOR /
DRAWER
1
/2"(13)
3
/32"
(2)
5
/16"
(8)
5
/16"
(8)
5
/32"
(4)
GRILLE
DOOR
1
/4" (6)
REVEAL
5
/16" (8)
1
/8" (3)
FLUSH INSET PANEL
SPACER
BACKER
DOOR DOOR
DOOR / DRAWER / GRILLE
1
/2"(13)
5
/16"
(8)
1
/8"
(3)
CABINETRY
GRILLE
TOP VIEWTOP VIEW
SIDE VIEW
SIDE VIEW
SIDE VIEW SIDE VIEW
CABINETRY
Illus. C
Illus. D
5
/8"
(16)
5
/8"(16)
5
/
16
"
(8)
1
/
2
"
(13)
5
/32"
(4)
5
/16"
(8)
5
/16"
(8)
3
/32"
(2)
DOOR
DRAWER
5
/16"
(8)
3
/32"
(2)
DOOR /
DRAWER
1
/2"(13)
3
/32"
(2)
5
/16"
(8)
5
/16"
(8)
5
/32"
(4)
GRILLE
DOOR
1
/4" (6)
REVEAL
5
/16" (8)
1
/8" (3)
FLUSH INSET PANEL
SPACER
BACKER
DOOR DOOR
DOOR / DRAWER / GRILLE
1
/2"(13)
5
/16"
(8)
1
/8"
(3)
CABINETRY
GRILLE
TOP VIEWTOP VIEW
SIDE VIEW SIDE VIEW
SIDE VIEW
SIDE VIEW
CABINETRY
Illus. E
UNDERCOUNTER WINE INTEGRATED PRO 48 BUILT-IN










