Spec Sheet

30"INTEGRATEDOVER-AND-UNDERREFRIGERATOR/FREEZER-PANELREADY
PRODUCTSPECIFICATIONS
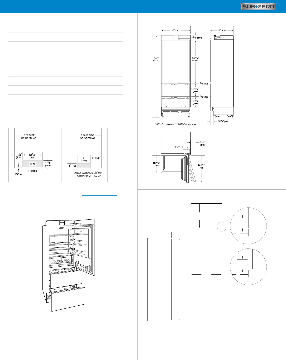
Model IT-30CI
Dimensions 30"Wx84"Hx24"D
DoorClearance 281/2"
DrawerClearance 183/8"
Weight 400lbs
RefrigeratorCapacity 10.6cu.ft.
FreezerCapacity 5cu.ft.
ElectricalSupply 115VAC,60Hz
ElectricalService 15ampdedicatedcircuit
Receptacle 3-pronggrounding-type
ELECTRICAL PLUMBING
PANELSPECIFICATIONSForcompletepanelsspecificationsincludingwidth/height,
weightrequirementsandthicknessrequirementsvisitsubzero-wolf.com/reveal.
NOTE:Dimensionsinparenthesisareinmillimetersunlessotherwisespecified
INTERIORVIEW
Thisillustrationisintendedforinteriorreferenceonlyandmaynotrepresenttheexterior
ofthemodelbeingspecified.
DIMENSIONS
STANDARDINSTALLATION
25" (635)
OPENING
DEPTH
30" (762)
OPENINGWIDTH
84"
(2134)
OPENING
HEIGHT
NOTE:3
1
/2"(89)finishedreturnswillbevisibleandshouldbefinishedtomatchcabinetry.
SIDEVIEW
TOPVIEW
FRONTVIEW
3
/4"(19)
TYPICAL
FRAMED
CABINETRY
30"
(762)
FILLER
3
1
/2"(89)
FINISHED
RETURN
FRAMELESS
CABINETRY
30"
(762)
3
/4"(19)
TYPICAL
3
1
/2"(89)
FINISHED
RETURN
Specificationsaresubjecttochangewithoutnotice.ThisinformationwasgeneratedonJanuary3,2019.Verifyspecificationspriortofinalizingyourcabinetry/enclosures.


