Quick Reference Guide

30"INTEGRATEDOVER-AND-UNDERREFRIGERATOR/FREEZER-PANELREADY
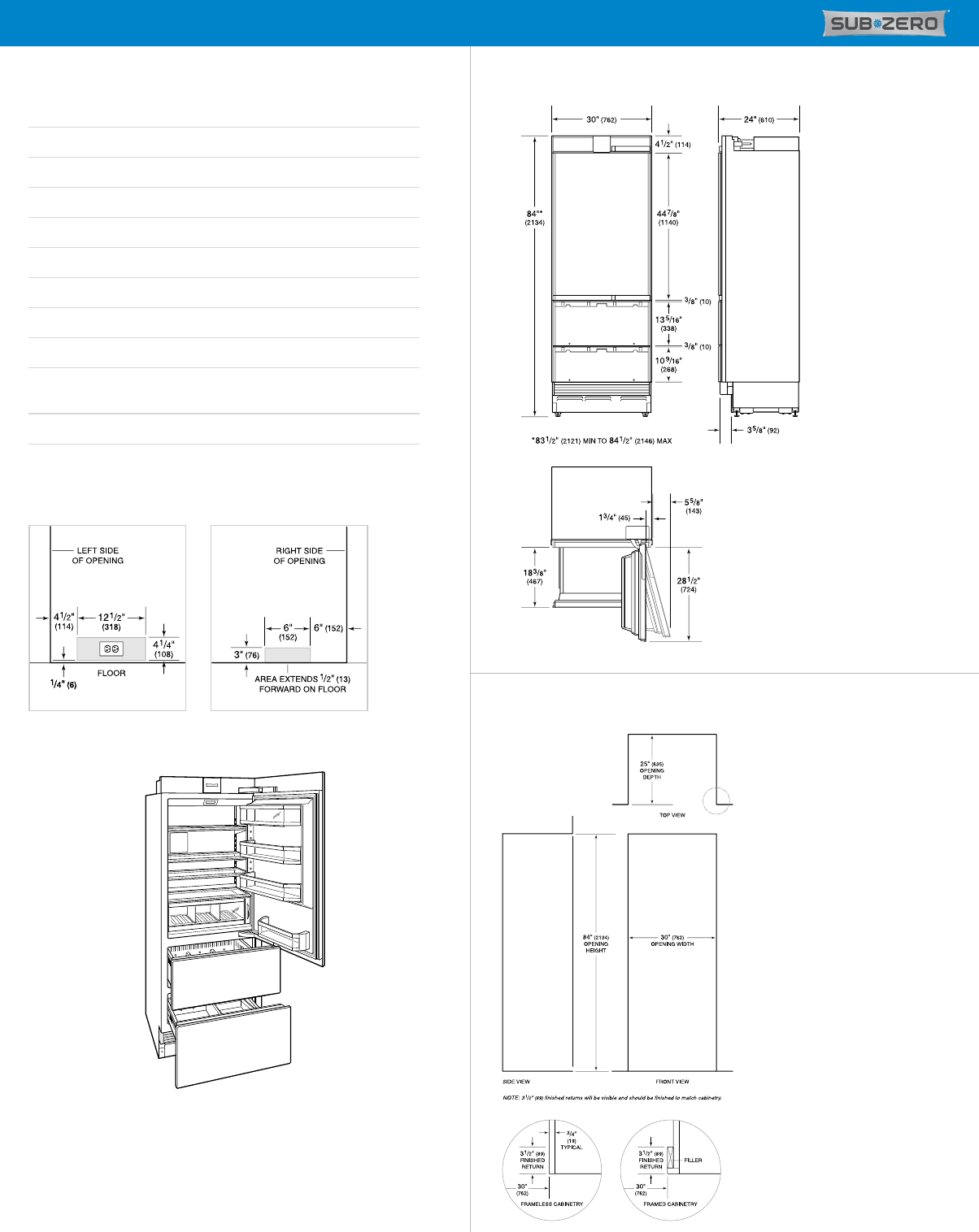
PRODUCTSPECIFICATIONS
Model IT-30CI
Dimensions 30"Wx84"Hx24"D
DoorClearance 281/2"
DrawerClearance 183/8"
Weight 400lb
RefrigeratorCapacity 10.6cuft
FreezerCapacity 5cuft
ElectricalSupply 115VAC,60Hz
ElectricalService 15ampdedicatedcircuit
PlumbingSupply 1/4"ODcopper,braidedstainlesssteelor
PEXtubing
PlumbingPressure 35–120psi
Receptacle 3-pronggrounding-type
ELECTRICAL PLUMBING
INTERIORVIEW
Thisillustrationisintendedforinteriorreferenceonlyandmaynotrepresenttheexterior
ofthemodelbeingspecified.
DIMENSIONS
STANDARDINSTALLATION


