user manual

17
3
/4"
(451)
W 24" (610)
84"*
(2134)
10
9
/16"
(268)
44
7
/8"
(1140)
13
5
/16"
(338)
3
/8" (10)
4
1
/
2
"
(114)
3
5
/8" (92)
*83
1
/2" (2121) MIN TO 84
1
/2" (2146) MAX
3
/8" (10)
A
B
1
3
/4" (45)
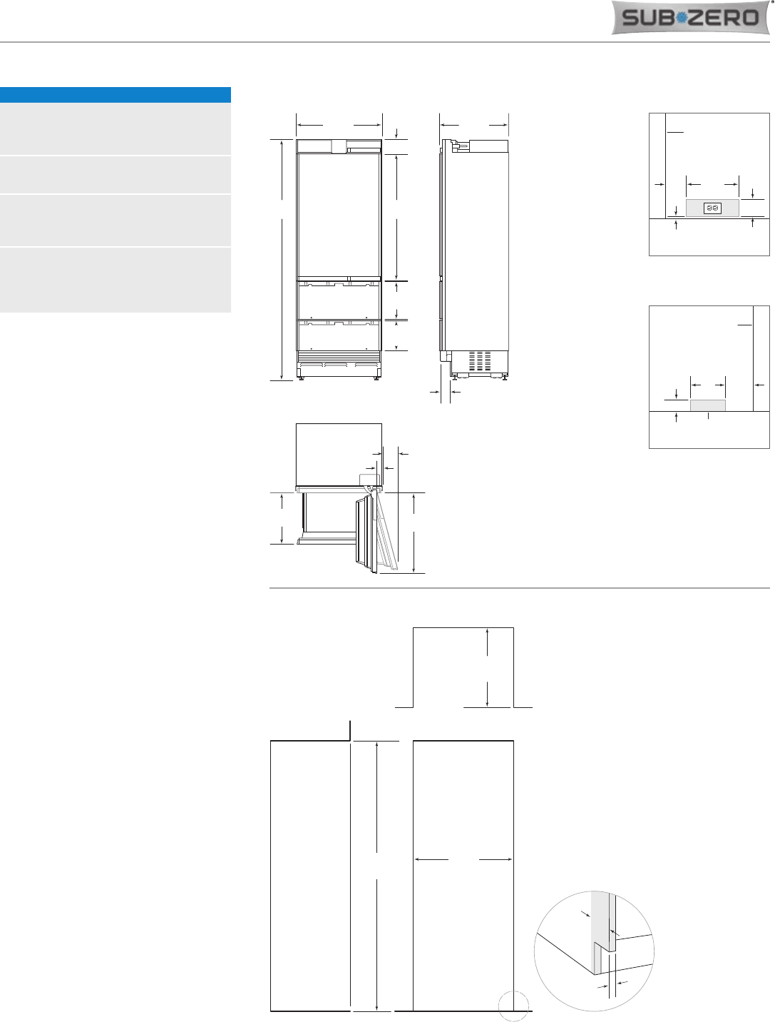
SPECIFICATIONS
PRODUCT
Dimensions 36"W x 84"H x 24"D
Weight 460 lb
CAPACITY
Refrigerator 20.5 cu ft
ELECTRICAL
Supply 115 VAC, 60 Hz
Service 15 amp circuit
PLUMBING
Supply
1
/4" OD copper, braided
stainless steel or PEX tubing
Pressure
35–120 psi
Overall dimensions do not include panels or
handles. Dimensions will vary with panel
thickness.
The depth of each integrated model is 24".
Allow for panel thickness when planning the
finished opening depth.
Specifications are subject to change without
notice. Visit subzero.com/specs for the most
up-to-date information.
Dimensions may vary ±
1
/8" (3). Dimensions in
parentheses are millimeters unless otherwise
specified.
36" Integrated All Refrigerator—Tall
subzero.com
INSTALLATION
DIMENSIONS
©Sub-Zero, Inc. all rights reserved. 9/2013
A
1
/4" (6)
1
/4" (6)
4
1
/4"
(108)
4
1
/2"
(114)
FLOOR
LEFT SIDE
OF OPENING
ELECTRICAL
3" (76)
6" (152)
RIGHT SIDE
OF OPENING
AREA EXTENDS
1
/2" (13)
FORWARD ON FLOOR
A
PLUMBING
25" (635)
OPENING
DEPTH
W
OPENING WIDTH
H
OPENING
HEIGHT
NOTE: Shaded areas will be visib
le and should be finished to match cabinetry.
SIDE
VIEW
TOP VIEW
FRONT VIEW
3
/4" (19)
TYPICAL
3
1
/2"
(89)
TYPICAL
36" (914)
7
1
/4" (184)
34
1
/2"
(876)
84" (2134)
36" (914)
15
1
/2"
(394)
9"
(229)


