User Guide

14
|
Wolf Customer Care 800.222.7820
WOLF BUILT-IN OVENS
30" E Series Single Oven
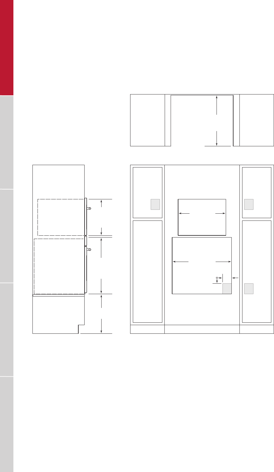
STANDARD INSTALLATION WITH CONVECTION STEAM OVEN
E
24" (610)
OPENING
DEPTH
FRONT VIEW
SIDE
VIEW
NOTE: Minimum base support for steam oven 100 lbs
(45 kg) and E series oven 250 lbs (113 kg).
Electrical supply for steam oven must be located in adjacent cabinet within 3'
(.9 m) of opening.
Location of electrical supply within E series oven opening may require additional cabinet depth
.
Dashed line represents profile of unit
.
TOP VIEW
28
1
/2" (724)
E SERIES OVEN
OPENING WIDTH
22
1
/4" (565)
STEAM OVEN
OPENING WIDTH
27
3
/16"
(691)
OPENING
HEIGHT
5
/8"
(16) min
17
11
/
16
"
(449)
OPENING
HEIGHT
22" (559)
TYPICAL
E
EE
5"
(127)
4"
(102)
RANGES / RANGETOPSVENTILATION COOKTOPS OVENS / WARMING DRAWERSOUTDOOR GRILLS










