User Guide

16
|
Wolf Customer Care 800.222.7820
WOLF BUILT-IN OVENS
30" E Series Single Oven
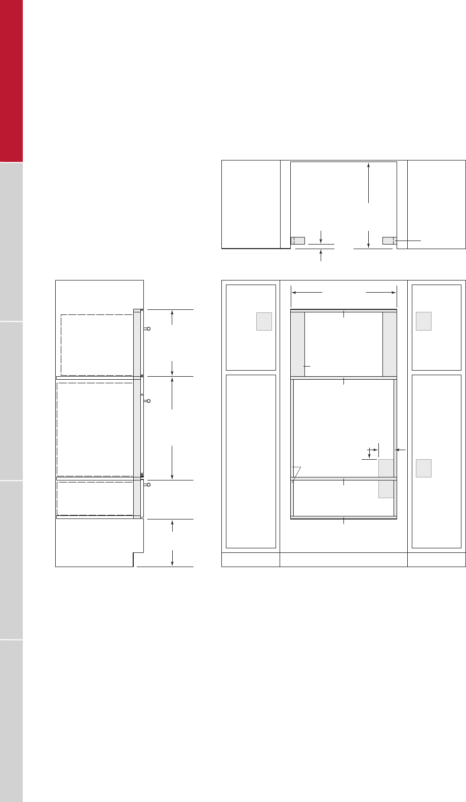
FLUSH INSET INSTALLATION WITH CONVECTION STEAM OVEN AND WARMING DRAWER
E
E
30
3
/8" (772)
FLUSH INSET WIDTH
FRONT VIEW
SIDE
VIEW
10
5
/8"
(270)
FLUSH INSET
HEIGHT
WARMING DRAWER
*W
ill be visible and should be finished to match cabinetry.
**1"
(25) for professional and transitional models and 1
1
/4" (32) for contemporary model.
NOTE: Minimum base support for steam oven 100 lbs
(45 kg) and E series oven 250 lbs (113 kg).
Electrical supply for steam oven must be located in adjacent cabinet within 3'
(.9 m) of opening.
Location of electrical supply within E series oven opening may require additional cabinet depth
.
Dashed line represents profile of unit
.
18
1
/
8
"
(460)
FLUSH INSET
HEIGHT
28
1
/8"
(714)
FLUSH INSET
HEIGHT
E SERIES OVEN
CONVECTION
STEAM OVEN
7
/16"(11)
9
/16" (14)
1" (25)
5
/8" (16)
4
1
/16" (103)
25" (635)
FLUSH INSET
DEPTH
FINISHED
CLEATS*
1"
(25)
OR
1
1
/4" (32)**
TOP VIEW
10" (256)
TYPICAL
E
E
E
5"
(127)
4"
(102)
1" (25)
RANGES / RANGETOPSVENTILATION COOKTOPS OVENS / WARMING DRAWERSOUTDOOR GRILLS










