User's Manual

18
|
Wolf Customer Care 800.222.7820
WOLF BUILT-IN OVENS
30" E Series Single Oven
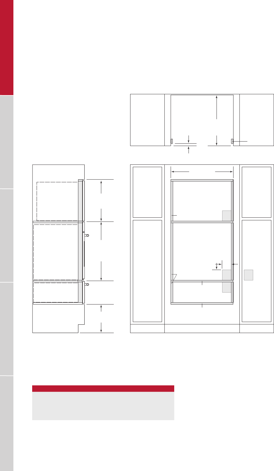
FLUSH INSET INSTALLATION WITH MICROWAVE AND WARMING DRAWER
E
E
E E
25" (635)
FLUSH INSET
DEPTH
FINISHED
CLEATS*
1" (25)
OR
1
1
/
4
"
(32)**
TOP VIEW
*W
ill be visible and should be finished to match cabinetry.
**1"
(25) for professional and transitional models and 1
1
/4" (32) for contemporary model.
NOTE: Minimum base support for E series oven 250 lbs
(113 kg).
Location of electrical supply within E series oven opening may require additional cabinet depth
.
Dashed line represents profile of unit
.
10
5
/8"
(270)
FLUSH INSET
HEIGHT
FLUSH
INSET
HEIGHT
28
1
/8"
(714)
FLUSH INSET
HEIGHT
30
3
/8" (772)
FLUSH INSET WIDTH
WARMING DRAWER
MICROWAVE OVEN
E SERIES OVEN
FRONT VIEW
SIDE
VIEW
7
3
/4" (197)
TYPICAL
5"
(127)
4"
(102)
9
/16" (14)
1" (25)
1" (25)
1" (25)
MICROWAVE OPENING
MICROWAVE CONVECTION STANDARD
Flush Inset Height 20
1
/8" (511) 18
1
/2" (470)
Top Cleat
1
/2" (13)
13
/16" (20)
Bottom Cleat 1
7
/16" (37) 1
7
/16" (37)
RANGES / RANGETOPSVENTILATION COOKTOPS OVENS / WARMING DRAWERSOUTDOOR GRILLS