User`s manual

Chapter 2: Installation
2-31
SPI BIOS
I-SATA1
I-SATA0
I-SATA5
I-SATA4
JBT1
SATA-SGPIO0
DP5
LED5
DP4
JPL1
JPG1
JPB
JPS1
JWD
JI2C2
JI2C1
JOH1
JD1
LAN1
VGA
FAN5
KB/MS
P2-DIMM3A
FAN6
P2-DIMM3B
JPI2C
JPW1
JPW2
FAN1
P2-DIMM2A
P2-DIMM2B
P2-DIMM1A
P2-DIMM1B
FAN7
COM1
CPU1
JF1
CPU2
IPMI_LAN
USB0/1
PWR_LED
P1-DIMM1B
P1-DIMM1A
FAN2
P1-DIMM2A
SMBus1
LAN2
FAN8
P1-DIMM3B
Slot7 PCI-E 2.0 X8
P1-DIMM3A
FAN3
Slot6 PCI-E 2.0 X8
Slot5 PCI-E 2.0 X8
Battery
Slot4 PCI-E 2.0 X8
Buzzer
Slot3 PCI-E 2.0 X8
FLASH
(IOH36D-1)
BMC
Slot2 PCI-E 2.0 X8
SAS Activity
SAS0~3
ICH10R
SAS4~7
Slot1 PCI-E 2.0 X8
USB4/5
USB3
USB6/7
LSI
SAS2008
FAN4
JPW3
P1-DIMM2B
LAN CTRL
SAS
PHY
I-SATA2
I-SATA3
X8DTH
Rev. 2.0
SATA-SGPIO1
DP6
DP7
Intel
(South Bridge)
5520
Intel
(IOH36D-2)
5520
Intel
RAID Key
JL1
1
1
1
COM2
TPM
JHB1
JWOL1
Wake-On-LAN
JWF1
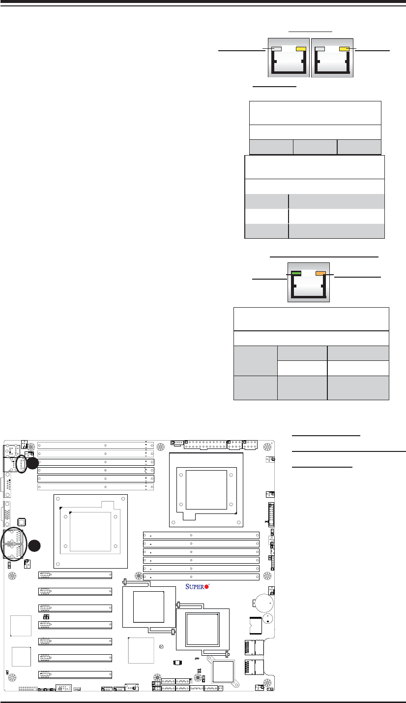
2-8 Onboard LED Indicators
A
B
A. LAN1/2 LEDs
B. Dedicated LAN LEDs
(X8DTH-iF/6F)
GLAN LEDs
Two LAN ports (LAN 1/LAN 2) are located
on the IO Backplane of the motherboard.
Each Ethernet LAN port has two LEDs. The
yellow LED indicates activity, while the oth-
er Link LED may be green, amber or off to
indicate the speed of the connections. See
the tables at right for more information.
LAN 1/LAN 2 Link LED (Left)
LED State
LED Color Defi nition
Off No Connection or 10 Mbps
Green 100 Mbps
Amber 1 Gbps
LAN 1/LAN 2 Activity LED (Right)
LED State
Color Status Defi nition
Yellow Flashing Active
Rear View (when facing the
rear side of the chassis)
Activity LED
Link LED
IPMI Dedicated LAN LEDs (X8DTH-
iF/6F)
In addition to LAN 1/LAN 2, an IPMI Dedi-
cated LAN is also located on the IO Back-
plane of the X8DTH-iF/6F. The amber LED
on the right indicates activity, while the
green LED on the left indicates the speed
of the connection. See the tables at right
for more information.
Link LED
Activity LED
IPMI LAN (X8DTH-iF/6F only)
IPMI LAN Link LED (Left) &
Activity LED (Right)
Color/Status Defi nition
Link (Left) Green: Solid 100 Mbps
Off
No Connection
Activity
(Right)
Amber:
Blinking
Active
LAN1/LAN2










