Installation Guide

2
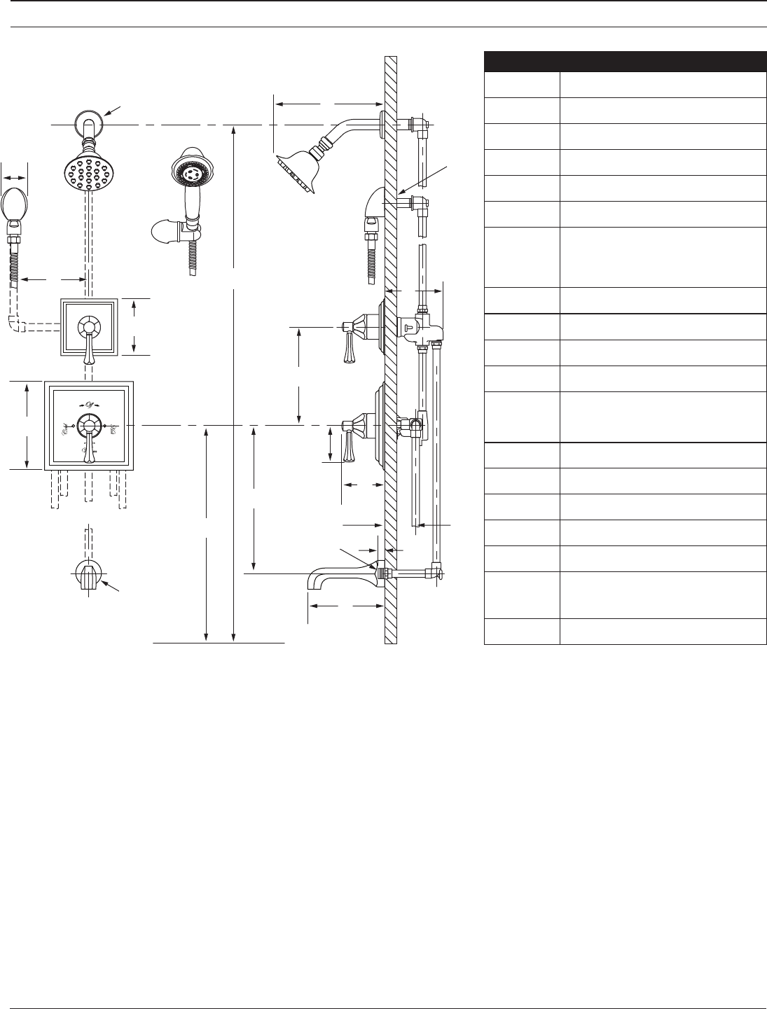
Dimensions
Symmons Industries, Inc. ■ 31 Brooks Drive ■ Braintree, MA 02184 ■ (800)796-6667 ■ Fax: (800)961-9621
©2014 Symmons Industries, Inc.
■
www.symmons.com
■
gethelp@symmons.com
■
ZV-3059 REV 0 06/16/2014
Measurements
A Ø 2 1/4", 57 mm
B 8 5/8", 219 mm
C 2 1/8", 54 mm
D 6", 152 mm right or left
E 5", 127 mm
F 77", 1956 mm
G
Male 1/2" NPT thread must
be recessed 1/4" from
nished wall
H 7 1/2", 191 mm
I 10", 25 mm
J 4 3/4", 121 mm
K Ø 2 5/8", 67 mm
L
32", 813 mm (4506-TRM)
45", 1143 mm (4503-TRM,
4505-TRM)
M 12", 305 mm
N 3", 76 mm
O 3", 76 mm
P 1/2" NPT
Q 1/2", 13 mm
R
(Rough-in)
2 3/8" ± 1/2", 60 mm ± 13 mm
S 7 1/4", 184 mm
Notes:
1) All dimensions measured from nominal rough-in (see S as reference).
2) Dimensions are subject to change without notice.
AA
H
H
K
K
L
L
M
M
F
F
B
B
G
G
J
J
I
I
N
N
O
O
R
R
S
S
Q
Q
P
P
D
D
Floor
Floor
E
E
C
C






