Installation Guide

INSTALLATION:
Caution: Be sure to turn o hot and cold water supplies
before installing or servicing faucet.
1. Push valve bodies through holes in sink from underneath. Make
sure ange nuts and mounting washers are on underside of sink.
Valve with red striped hose (hot) is on the le and blue (cold) is on
the right. Put gasket (LN-129) over valve body. read escutcheon
(LN-128) onto valve body. e top of the valve spindle should
measure 1-7/8” from mounting surface (See rough in drawing).
2. read collar (LN-112 or LN-111) on to valve body until it reaches the
escutcheon (LN-128).
3. Standard or LWG handle installation: Place bushing (LN-115) on
valve spindle. Turn valves to o position (CR style: turn clockwise;
LWG, LCF, LPO, LAM, and standard style: turn hot clockwise,
turn cold counterclockwise). Place handle (LN-131) on bushing.
read screw (LN-146 or LN-121) into valve and push plug button
(T-33R and T-33B) into top of handle. CR, LCF, LPO and LAM
handle installation: Place handle on valve spindle and thread screw
(LN-121 or LN-134) into valve.
4. Tighten ange nuts and mounting washers from underneath sink and
secure with mounting screws if necessary.
5. Swivel spout option: Place spout assembly (LN-200) in centerbody
(LN-197). read nut (LN-199) onto centerbody (LN-197).
Rigid spout option: read screw (LN-205) into the bottom of the
spout assembly (LN-200). Place spout assembly (LN-200) in center
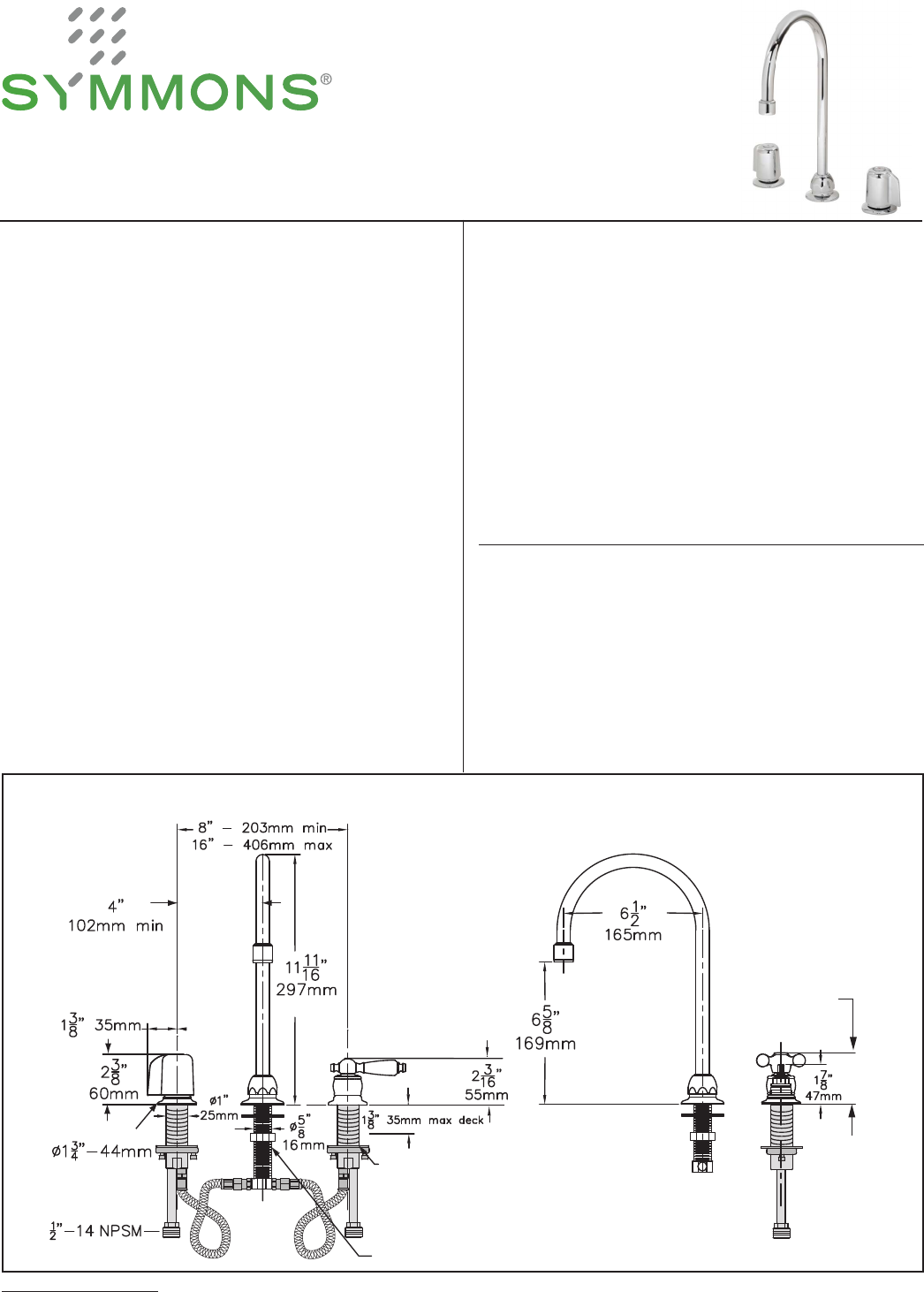
7/8" (22mm) min
1-3/8" (35mm) max
hole size
1-1/16" (27mm) min
1-7/16" (37mm) max
hole size
Escutcheon
S-254-CR handle
S-254
standard
handle shown
S-254-LAM
S-254-LPO
S-254-LCF
S-254-LTM
2-7/16
(61 mm)
Dimensions Origins, S-254, S-254-CR, S-254-LAM, S-254-LPO, S-254-LCF, S-254-LTM
Note: Dimensions subject to
change without notice.
body (LN-197). read nut (LN-199) onto center body (LN-197).
6. Drop assembled center body and spout through center hole of deck.
Secure assembly to sink using nut (SPF-108) and washer (LN-138).
7. read tee (LN-189) onto the end of the center body (LN-197).
read ex hose adapters into tee using pipe sealant on the threads.
Attach ex hoses to ex hose adapters.
8. Connect hot supply to le tube and cold supply to right tube using
appropriate connectors.
9. It is very important to thoroughly ush the supply lines to prevent
foreign matter, i.e. copper chips, sand, stones, etc. from damaging
the sealing surfaces of cartridge. Remove aerator and open hot and
cold to full open then open both supplies. Let water run through
hot and cold long enough to ush supply lines thoroughly. Shut o
faucet and replace aerator. Check for leaks.
Cartridge Replacement (KN-113 or KN-114):
1. Remove plug button (T-33, T-33R or T-33B), loosen Philip head
screw (LN-121) and remove handle, (LN-131 or LN 152).
2. Remove collars (LN-112) by turning counter clockwise, do not use
wrench as this may damage the surface nish.
3. Place wrench on cartridge hex nut (KN-113, KN-114). Turn
wrench counter clockwise until cartridge is removed.
4. Install new cartridge. Turn cartridge with wrench until cartridge
does not turn easily then turn 1/4 to 1/2 turn further. Reassemble
handle in reverse fashion.
Lavatory Faucet S-254 Series
Installation and Service Instructions
Origins
®
For California Residents
WARNING: This product contains chemicals known to the State of California to cause cancer, birth defects, or other reproductive harm.