Manual

D500-35-00 2 I56-917-02
Mounting
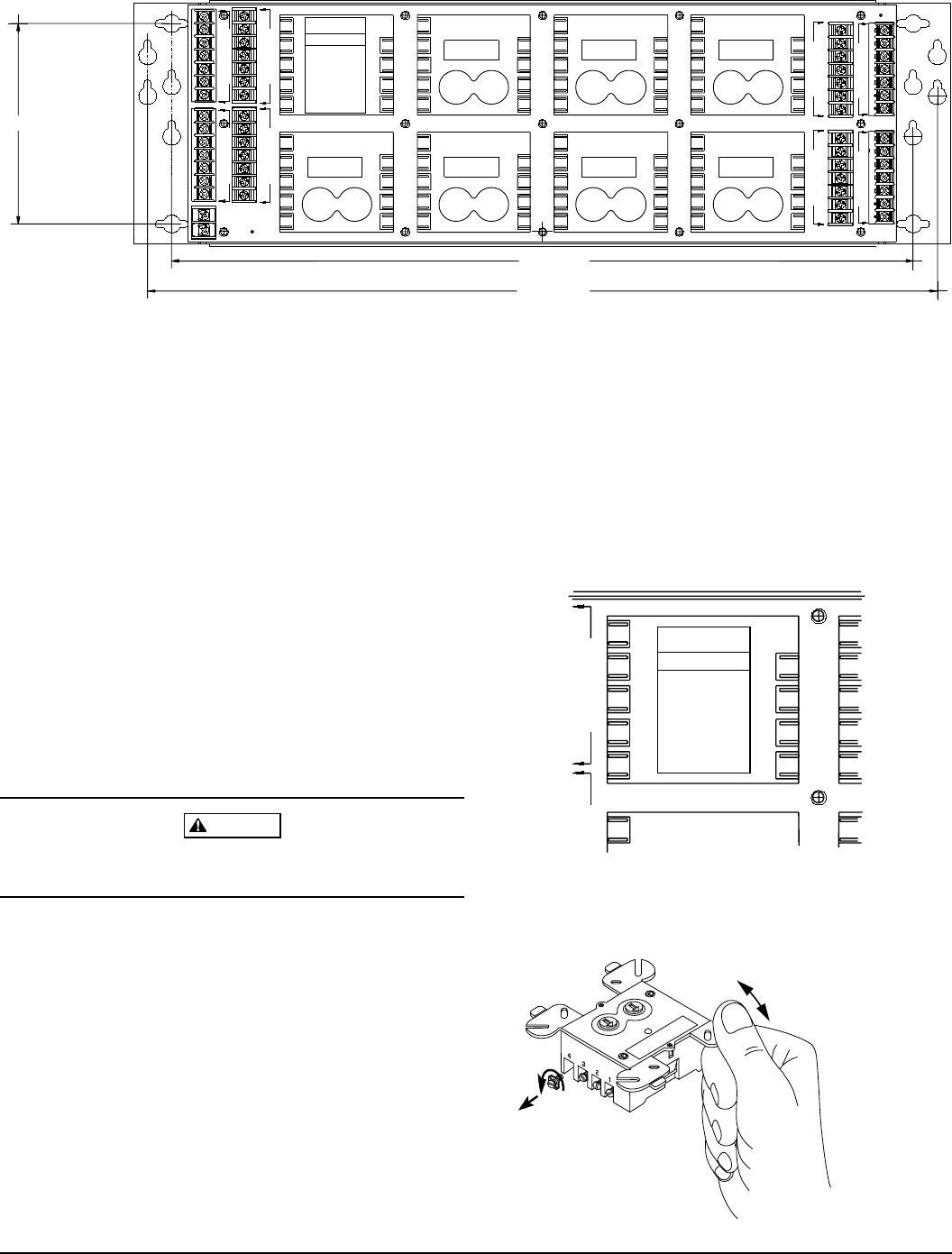
1) Select the desired mounting location in a cabinet and
measure the mounting hole centers. The MB500 is
equipped with 3 sets of mounting holes for use depend-
ing on the mounting configuration:
A) 19 inch EIA standard with 18.312 inch (46.5 cm) cen-
ter-to-center mounting holes for horizontal mounting
B) 19.5 inch (49.5 cm) center-to-center mounting holes
for horizontal mounting
C) 5 inch (12.7 cm) center-to-center mounting holes for
vertical mounting
2) Hold the MB500 in place, mark the appropriate set of
mounting holes, and drill holes (if needed) in the
mounting surface.
3) Drive screws in place, allowing room for the MB500 to
slide over the screw heads.
4) Tighten screws to secure the MB500 to the mounting
surface.
WARNING
Remove power before installing modules and wiring the
MB500 panel.
Address Verification
Before installing the modules onto the panel, use the label
in position A (see Figure 3A) to record the type for each
module. Circle C (control) or M (monitor) to indicate the
type of module and record the address on the space pro-
vided.
Module Mounting
Before placing the individual modules onto the MB500, re-
move the terminal screws on the modules and break off the
"ears" at the scored section on the module junction box
mounting plate (see Figure 3B). Now the modules can be
plugged into the board. Line up the clips mounted on the
+2
7
5
0 9
6
1
2
4
3
7
8 1
2
5
6
3
4
0 9
3
8
7
54
6
8
9
-1
+2
7
5
0 9
6
1
2
4
3
7
8 1
2
5
6
3
4
0 9
3
8
7
54
6
8
9
-1
+2
7
5
0 9
6
1
2
4
3
7
8 1
2
5
6
3
4
0 9
3
8
7
54
6
8
9
-1
+2
7
5
0 9
6
1
2
4
3
7
8 1
2
5
6
3
4
0 9
3
8
7
54
6
8
9
-1
4
2 COMM +
1 COMM -
3
E
3
F
4
4
7
5
6
8
9
3
5
6
7
9
8
+2
7
5
0 9
6
1
2
4
3
7
8 1
2
5
6
3
4
0 9
3
8
7
54
6
8
9
-1
+2
7
5
6
4
3
8
9
-1
7
L
E
U
D
L
E
5
U
6
D
O
M
O
M
8
9
BA
3
4
E
L
U
E
5
L
6
U
E
9
M
D
O
M
D
O
7
8
F G
B
C
U
+2
7
5
0 9
6
1
2
4
3
7
8 1
2
5
6
3
4
0 9
3
8
7
54
6
8
9
-1
4
3
E
G
5
L
6
H
4
3
E
L
U
5
6
+2
7
5
0 9
6
1
2
4
3
7
8 1
2
5
6
3
4
0 9
3
8
7
54
6
8
9
-1
3
H
D
O
7
M
8
9
E
C
4
5
L
U
6
D
O
7
D
9
M
8
M
3
9
D
O
M
7
8
E
D
4
5
L
U
O
D
6
7
9
8
A
B
C
D
EF
G
H
WARNING
DISCONNECT ALL POWER SOURCES
BEFORE SERVICING
C = CONTROL M = MONITOR
MODULE TYPE ADDRESS
A C M ______
B C M ______
C C M ______
D C M ______
E C M ______
F C M ______
G C M ______
H C M ______
ALL MODULES MUST BE USED FOR
EITHER POWER - LIMITED OR
NON - POWER LIMITED APPLICA-
TIONS. NO COMBINATION IS
ALLOWED.
5.000 (C)
18.312 (A)
19.500 (B)
A78-2624-00
Figure 2. Mounting holes:
9
+2
7
5
6
4
3
8
9
-1
7
U
D
O
M
8
9
B
3
4
E
5
L
6
U
9
M
D
O
7
8
WARNING
DISCONNECT ALL POWER SOURCES
BEFORE SERVICING
C = CONTROL M = MONITOR
MODULE TYPE ADDRESS
A C M ______
B C M ______
C C M ______
D C M ______
E C M ______
F C M ______
G C M ______
H C M ______
ALL MODULES MUST BE USED FOR
EITHER POWER - LIMITED OR
NON - POWER LIMITED APPLICA-
TIONS. NO COMBINATION IS
ALLOWED.
A
E
Figure 3A. Label each module:
A78-2629-00
A78-2625-00
Figure 3B. Remove module terminal screws and
break off mounting plate ears:
circuit board of the MB500 with the terminals on the indi-
vidual modules, and plug a module into the panel at posi-
tion A (see Figure 4). Repeat the procedure for positions B,
C, and so on, for up to 8 modules.




