Manual

D500-35-00 3 I56-917-02
Wiring Installation
Once the control and/or monitor modules have been
plugged in, begin wiring the panel. Field wiring is com-
pleted using screw terminals accessible from the 6-inch
long sides of the MB500. The seven-position screw termi-
nals accept 14- to 22-gauge wire and are two-tiered for easy
wiring. A two-position screw terminal block is used for the
common power wiring that exists between the modules
and accepts 12- to 18-gauge wire.
A78-2626-00
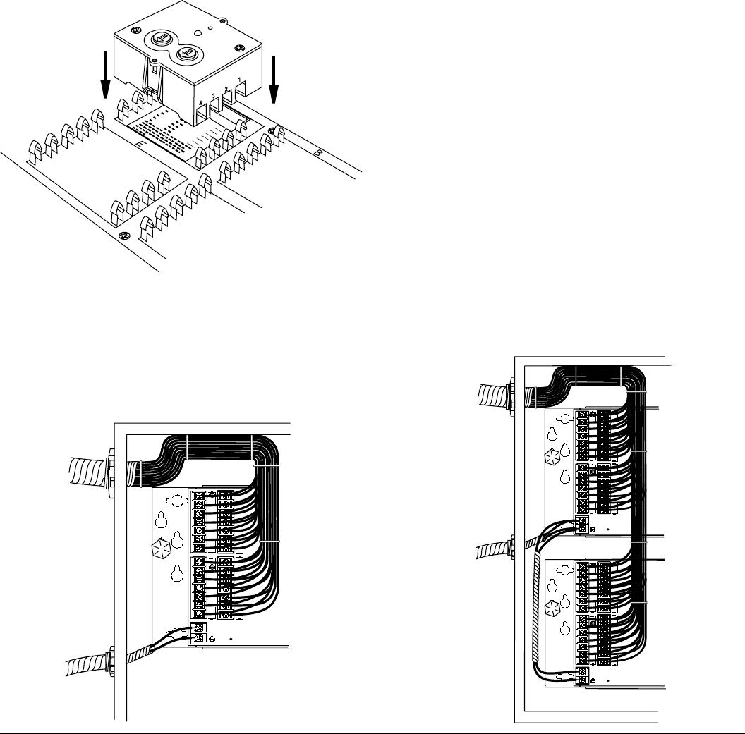
Figure 4. Mounting a module on the MB500:
Figure 5A. Wiring the module panel in a cabinet for
nonpower-limited applications:
Figure 5B. Wiring multiple module panels in a cabinet
for nonpower-limited applications:
4
2 COMM +
1 COMM -
3
E
3
F
4
4
7
5
6
8
9
3
5
6
7
9
8
7
L
E
U
D
L
E
5
U
6
D
O
M
O
M
8
9
B
A
3
4
E
L
U
E
5
L
6
U
9
M
D
O
M
D
O
7
8
A78-2627-00
4
2 COMM +
2 COMM +
1 COMM -
1 COMM -
3
E
3
F
4
4
7
5
6
8
9
3
5
6
7
9
8
7
L
E
U
D
L
E
5
U
6
D
O
M
O
M
8
9
B
A
3
4
E
L
U
E
5
L
6
U
9
M
D
O
M
D
O
7
8
4
2 COMM +
2 COMM +
1 COMM -
1 COMM -
3
E
3
F
4
4
7
5
6
8
9
3
5
6
7
9
8
7
L
E
U
D
L
E
5
U
6
D
O
M
O
M
8
9
B
A
3
4
E
L
U
E
5
L
6
U
9
M
D
O
M
D
O
7
8
A78-2628-00
Make wire connections by stripping about
1
/
4
inch (0.64
cm) of insulation from the end of the wire. Connect the
communication line to terminals 1 and 2. For specific mod-
ule wiring, match the module location to the correct termi-
nal strip. Refer to the control and/or monitor module
instruction manual for specific application wiring.
NOTE: The communication circuit to all modules is desig-
nated power limited. The remaining circuits must
be wired as either all power limited or all
nonpower limited. Refer to marking on individual
modules.
NOTE: When wiring modules for nonpower-limited appli-
cations, the wires to terminals 3-9 on each terminal
strip must be bundled together with wire ties and
routed through conduit, keeping them separated
from communication lines 1 and 2 (comm. - and
comm. +) by a minimum of
1
/
4
inch at all points
(see Figures 5A and 5B). Communication line 1
and 2 wiring must also be routed through its own
conduit.




