Performance Data Sheet

Rev 2, March 18, 2004
Tecumseh Products Company
Hermetic Condensing Units
Model: AJA2422ZXAXC R-404a ½ HP AIR COOLED
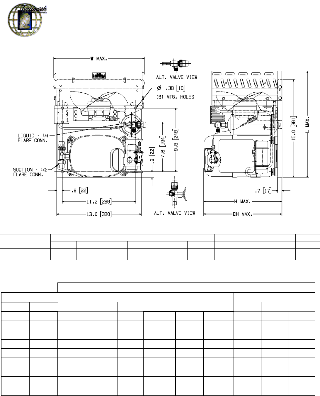
Note: Dimensioning = Inches [mm]
Dimensions, inches Line Connection* Pump down Air Oil Ch Gr. Wt.
Model
L W H CH Suction Liquid
90 °F 90%
SCFM Oz. Lbs.
AJA2422ZXAXC
16.4 14.0 11.6 11.6 ½” Flare ¼ Flare 2.8 Lbs 285 26 87
* F = Flare, S = Solder, RF or RS = Rotolock with Flare or Solder Connections, C = Compression Fitting
Factory charge: 20 PSIG Nitrogen – MUST BE EVACUATED
60 Hz Performance
Ambient Temperatures
Evaporator 90°F 100°F 110°F
T, °F PSIG BTUH Watts Head BTUH Watts Head BTUH Watts Head
-30
9.9
1290 485 240 1060 475 275 875 460 305
-25
13.0
1500 530 250 1270 425 280 1070 510 315
-20
16.3
1710 575 260 1475 575 290 1270 565 325
-15
19.5
1950 625 270 1680 625 300 1450 615 335
-10
24.0
2180 675 280 1885 675 310 1640 670 345
-5
28.3
2420 725 290 2090 725 320 1810 725 355
0
33.0
2660 780 305 2330 785 335 1980 785 370
5
38.1
2910 835 315 2535 845 350 2140 850 380
10
42.4
3160 895 320 2740 905 365 2300 915 395
Return gas temp. 40°F, 5°F sub cooling