user manual

17
Call Signaling:
Pin 1 - Common
Pin 2 - Local power (+12 to +15 VDC) If needed
Pin 3 - Power +30 VDC
Pin 4 - Intercom channel 1 audio and DC call signaling
Pin 5 - Power +30 VDC
Pin 6 - Intercom channel 2 audio and DC call signaling
Speaker Output Power
4W max @ 8 ohms
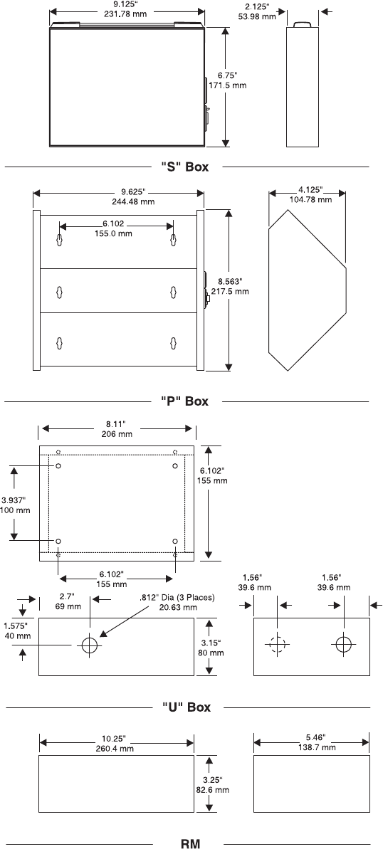
Dimensions