Instructions

Synchronizace
KlimaLogg Pro má USB tlačítko. Když Vás počítačový software požádá o zahájení synchronizace,
stiskněte a 3 sekundy podržte USB tlačítko na KlimaLogg Pro, až uslyšíte krátké pípnutí a začne
blikat symbol USB v nástrojové liště. Synchronizace se poté musí potvrdit v počítačovém programu.
Pokud bude synchronizace úspěšná, ozve se další pípnutí a symbol USB se bude zobrazovat
nepřetržitě. KlimaLogg Pro začne přenášet data na PC.
Úvodní kontakt
Synchronizace je vyžadována pouze jednou, aby se záznamník začlenil do programu.
Aby se během dalšího startu inicioval kontakt s programem, je potřebné pouze 1x stisknout
tlačítko USB. KlimaLogg pro se potom na 5 sekund pokusí vytvořit spojení a v textovém řádku
se zobrazí přiřazení, které obdrží od softwaru.
Pro získání informací k obsluze programu Vám doporučujeme využít návod (který je dostupný
ve formě PDF souboru v instalační složce programu), nebo použít funkci nápovědy v počítačovém
programu.
Datové sady, které se zaznamenaly, jsou bezdrátově přenášené na PC pomocí
USB zařízení pro přenos dat. Průměrná přenosová rychlost je 20 datových
sad za sekundu. V extrémních případech může trvat přenos všech datových sad
téměř 45 minut (když je paměť úplně zaplněna). V průběhu příjmu rádiem řízeného
časového signálu není komunikace s USB zařízením pro přenos dat možná
a je přerušena. Po spěšném ukončení příjmu se komunikace automaticky obnoví.
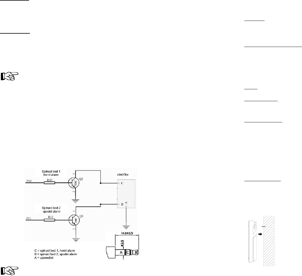
Hardwarový výstup otevřeného kolektoru
KlimaLogg Pro má hardwarový výstup otevřeného kolektoru. Tento výstup má dva spínací výstupy,
které reagují v případě alarmu na kanálu 1 následovně:
Spínací bod 1 je aktivní, když je překročena teplota, nebo vlhkost na kanálu 1.
Spínací bod 2 je aktivní, když teplota, nebo vlhkost na kanálu 1 klesne pod stanovenou hranici.
Spínací bod je aktivní, dokud je spuštěna hranice alarmu a opět se deaktivuje, když se příslušná
hodnota dostane znovu do standardního rozsahu, nebo se deaktivuje příslušné nastavení alarmu.
Výstup otevřeného kolektoru má zástrčku pro 3,5 m konektor. Konfigurace je znázorněna na níže
uvedeném nákresu.
Maximální spínací napětí: 24 V=
Maximální spínací proud: 400 mA
Dodržujte technickou specifikaci.
Při zapojování jakéhokoli externího hardwaru se ujistěte, že připojovaná jednotka
není pod proudem.
Řešení problémů
Pokud se objeví problémy, doporučujeme, abyste si přečetli příslušnou část návodu k obsluze,
abyste se důkladně seznámili s funkcemi a se zásadami provozu přístroje.
Záznamník
V případě selhání záznamníku, zkontrolujte baterie a v případě potřeby přístroj vypněte a znovu
zapněte.
Doporučujeme, abyste přístroj nechali několik minut odpočívat a až poté jste znovu vložili baterie.
Nepoužívejte akumulátory. Aby přístroj správně fungoval, používejte pouze baterie 1,5 V.
Problémy s rádiovým přenosem
Problémy s rádiovým přenosem se mohou vyskytnout mezi KlimaLogg Pro a vysílačem,
nebo mezi KlimaLogg Pro a USB zařízením pro přenos dat, pokud je rádiový signál ovlivňován
místními podmínkami.
Maximální dosah přenosu je až do 100 metrů k vysílači a až 10 metrů k USB zařízení pro přenos dat
(v obou případech to platí pro otevřený terén). V praxi se však skutečný dosah snižuje kvůli místním
podmínkám.
Podmínky, které snižují dosah, jsou následující:
Baterie
Slabé, nebo poškozené baterie mohou snižovat ideální přenos.
Viditelné překážky
Každá viditelná překážka má patřičný negativní vliv na příjem v závislosti na její tloušťce, struktuře
a materiálových vlastnostech. Pokud to je možné vyhněte se velkým kovovým a ocelovým povrchům
(včetně potahovaných a stínících okenních tabulí).
Neviditelné překážky
Velice obvyklou příčinou problémů je rušení zapříčiněné elektronickými faktory. V této souvislosti
byste měli dodržovat určitou vzdálenost od velkých elektrických zařízení (1 - 2 metry), abyste se
vyhnuli v maximální možné míře elektromagnetickým vlivům. Negativní vliv na přenos mohou mít
rovněž jakákoli jiná bezdrátová zařízení, která pracují v dosahu přístroje.
Pokud se objeví ztráty rádiového kontaktu, přečtěte si příslušnou část návodu k obsluze, abyste
dokázali kontakt obnovit. Pokud se Vám nepovede kontakt obnovit, nebo pokud bude docházet
k jeho opakovanému přerušení, zkontrolujte celkovou funkčnost přístrojů, když jsou položené těsně
vedle sebe. Pokud jsou zařízení v takovém případě funkční, ale přenos v požadovaném umístění
nefunguje spolehlivě, doporučujeme, abyste změnili místo záznamníku a/nebo vysílače/přijímače,
aby se optimalizovalo spojení.
Počítačový program
Mějte na paměti, že máte k dispozici funkci nápovědy v počítačovém programu a návod k obsluze
v podobě souboru PDF, který je součástí instalační složky softwaru.
Umístění záznamníku
KlimaLogg Pro můžete umístit na stůl, nebo jej připevnit na stěnu. Před montáží na stěnu se nejdříve
přesvědčte, že na plánovaném místě instalace lze bez problémů přijímat používané vysílače.
1. Na stěnu upevněte vhodný šroubek (není součástí dodávky) a zabezpečte,
aby jeho hlavička vyčnívala asi 5 mm ze stěny.
2. Stojánek pro položení záznamníku na stůl zasuňte a přes otvor na zadní
straně zavěste záznamník na stěnu. Předtím, než instalaci ukončíte,
se ubezpečte, že přístroj visí bezpečně.







