Specification
Manuals
Brands
Tile Redi Manuals
Bath
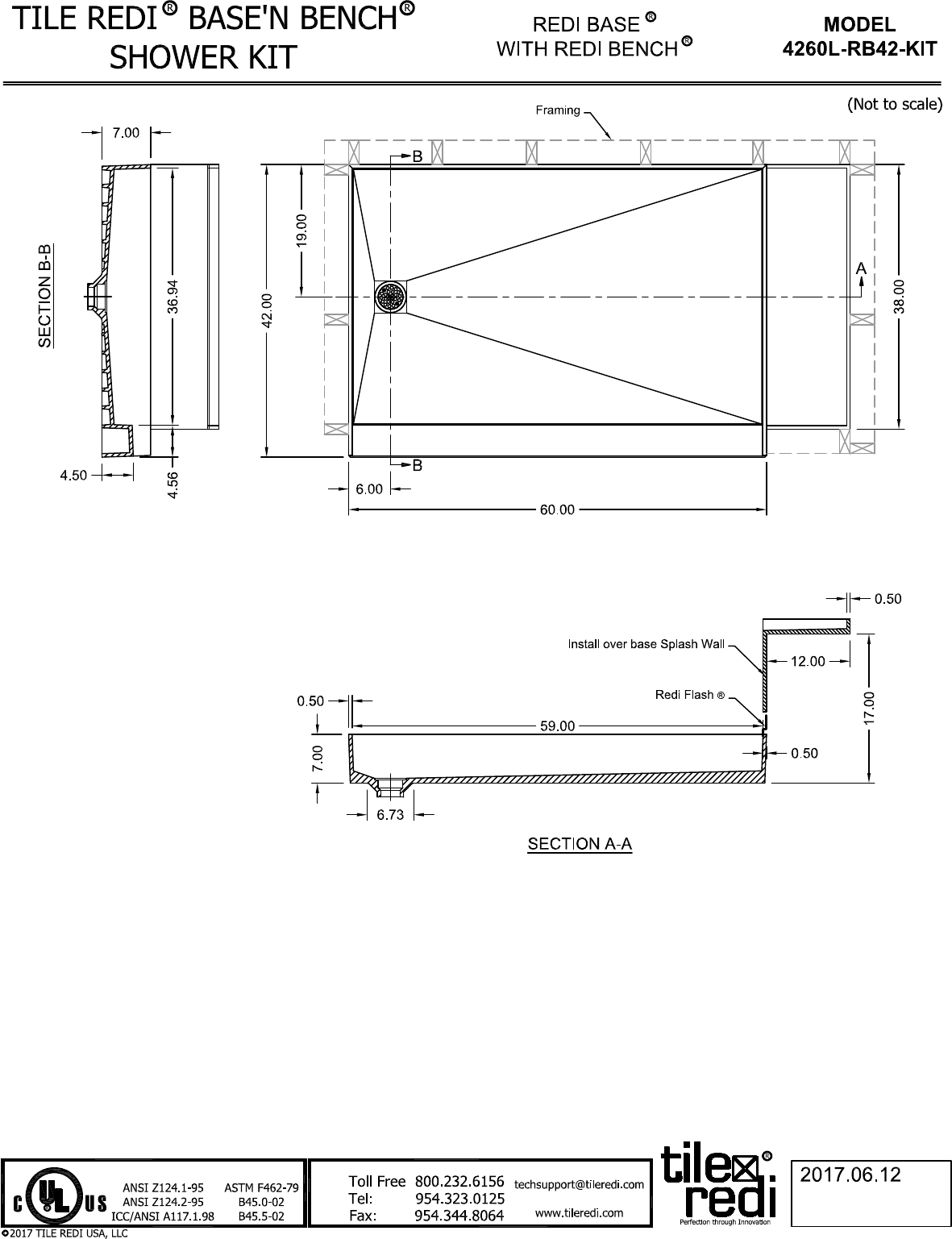
Base'N Bench 42 in. x 72 in. Single Threshold Shower Base in Gray and Bench Kit with Left Drain
1
1
Summary of content (1 pages)
PAGE 1