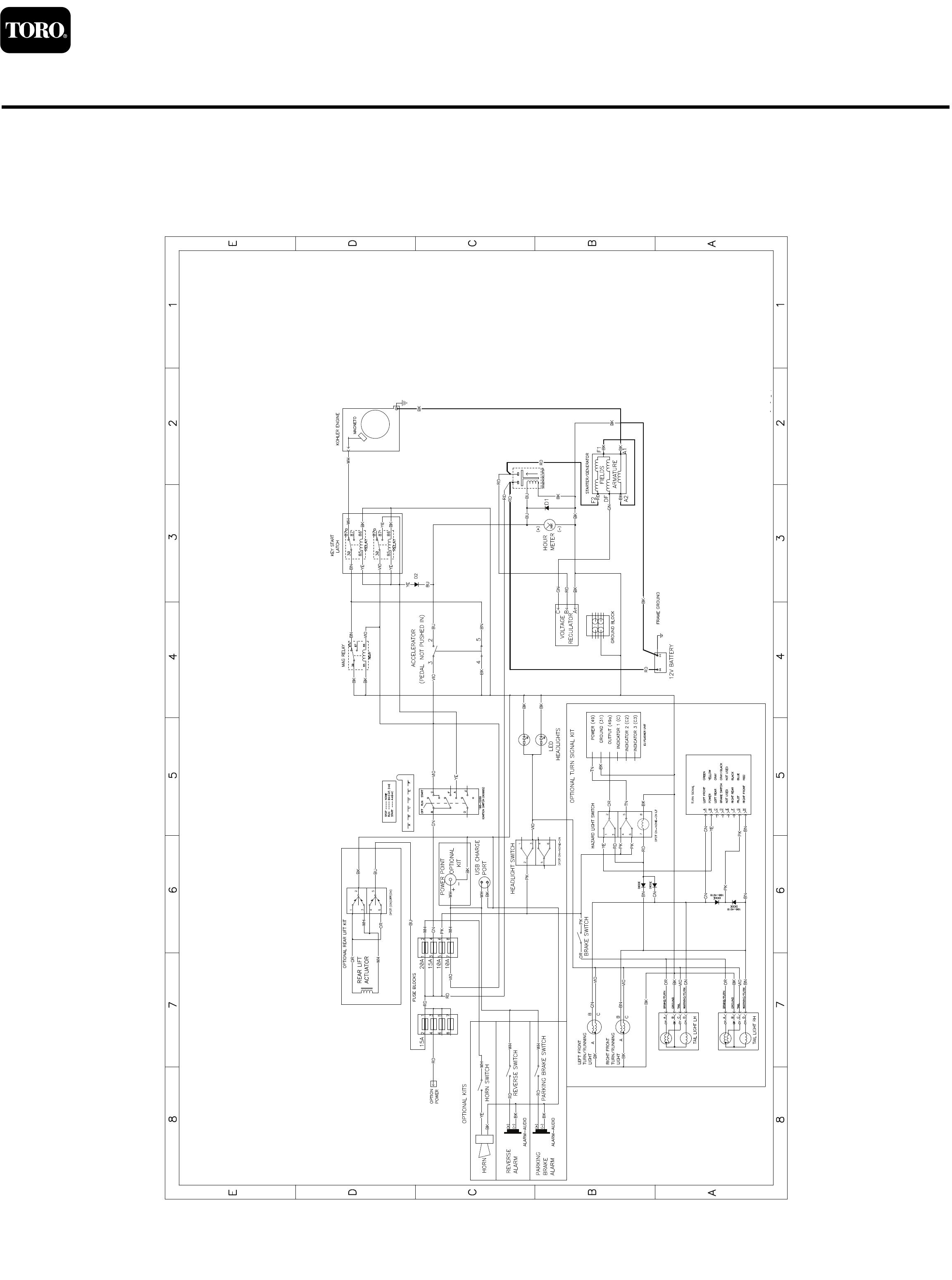
Schematic Drawing - Electrical

FormNo.3401-662RevB
Workman
®
GTXUtilityVehicle
ModelNo.07040—SerialNo.400000000andUp
ModelNo.07042—SerialNo.400000000andUp
ModelNo.07130—SerialNo.316000001andUp
ModelNo.07130TC—SerialNo.316000001andUp
ElectricalSchematic
ModelNo.07040,07042,07130,07130TC
122-0226RevB
1of2
07040:SerialNo.401061693andBefore
07042:SerialNo.401371189andBefore
07130:SerialNo.316999999andBefore
07130TC:SerialNo.316999999andBefore
g230504
©2017—TheToro®Company,8111LyndaleAvenueSouth,Bloomington,MN55420
FormNo.3401-662RevB