Specification

SPECIFICATIONS
• Water Use 1.28 GPF & 0.9GPF
(4.8LPF & 3.4LPF)
• Flush System 3D Tornado
™
• Min. Water Pressure 8 psi (flowing)
• Water Surface 5-1/2" x 4-3/16"
• Trap Diameter 2-1/8"
• Rough-in 12"
• Trap Seal 2-1/8"
• Warranty One Year Limited Warranty
• Material Vitreous china
• Shipping Weight C494CEF(G) - 70lbs
ST494M(R) - 31lbs
• Shipping Dimensions C494CEF(G)
29" L x 18" W
x 15-3/4" H
ST494M(R)
17-1/4" L x 8-1/2" W
x 16-1/4" H
CST494CEMF(R)(G)
Connelly
™
Close Coupled Toilet, 1.28GPF & 0.9GPF
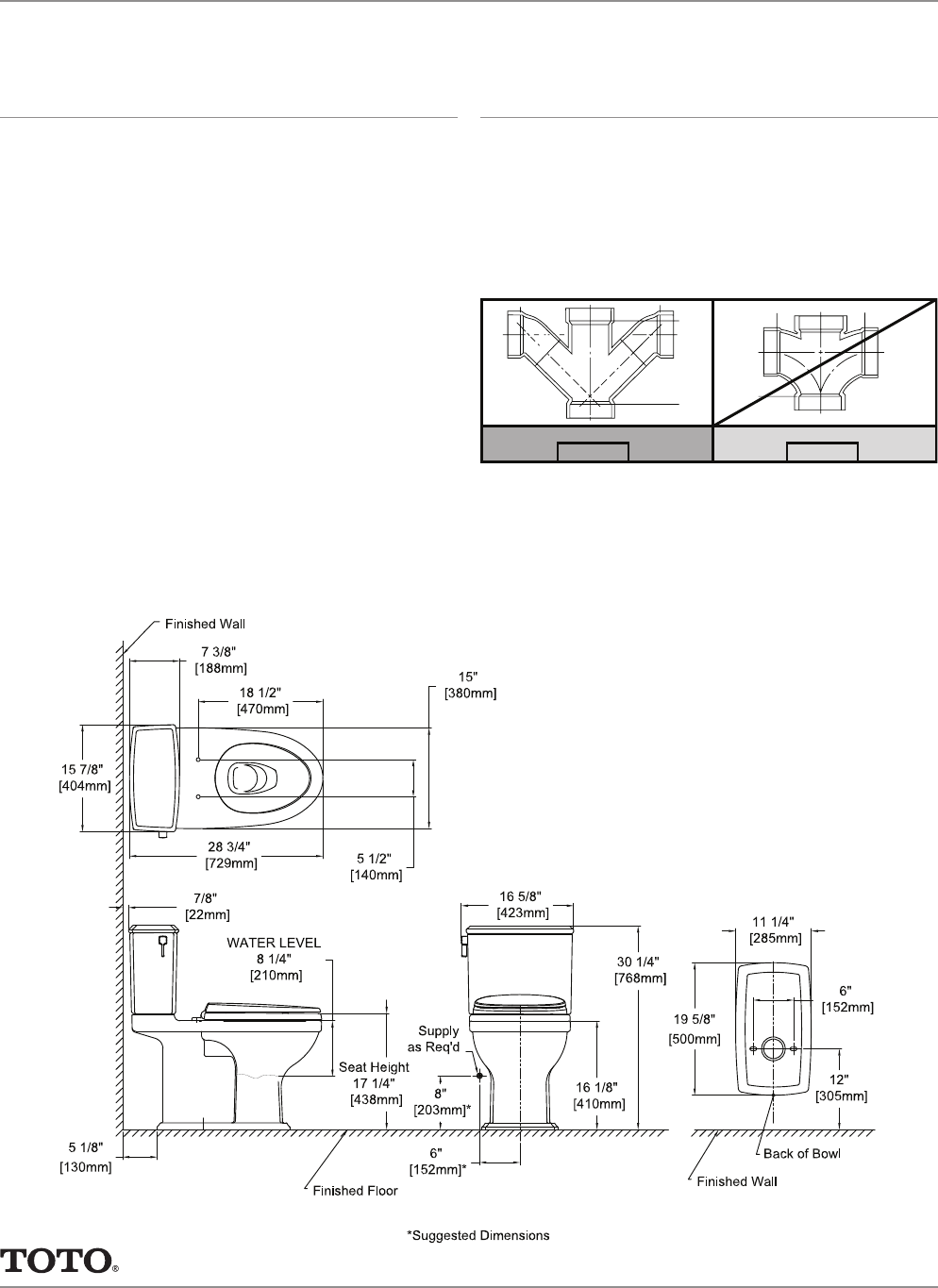
Double Sanitary Tee / Sanitary CrossDouble Combination Wye / 1/8 Bend
YES NO
# SS-00996 V.04
INSTALLATION NOTES
Back-to-Back Toilet Installations:
TOTO recommends the use of a nationally listed,
double sanitary tee-wye only, in vertical waste stacks,
in accordance with the stipulations noted in the
majority of nationally recognized plumbing codes.
Ph: (888) 295-8134 | Fax: (800) 699-4889 | www.totousa.com | © TOTO USA
These dimensions and specications are subject to change without notice
To maintain adequate wall gap between the back of
the tank and wall, mount the floor flange at a nominal
12” rough-in distance.