Reach-In Sliding Glass Door Refrigerator Specification Sheet

Project Quantity Item #
Model Specified: CSI Section 11400
TRAULSEN
4401 BLUE MOUND RD. FT. WORTH, TX 76106
PHONE 1 (800) 825-8220 FAX-MKTG. 1 (817) 624-4302
Website: www.traulsen.com
SECTION
11-1
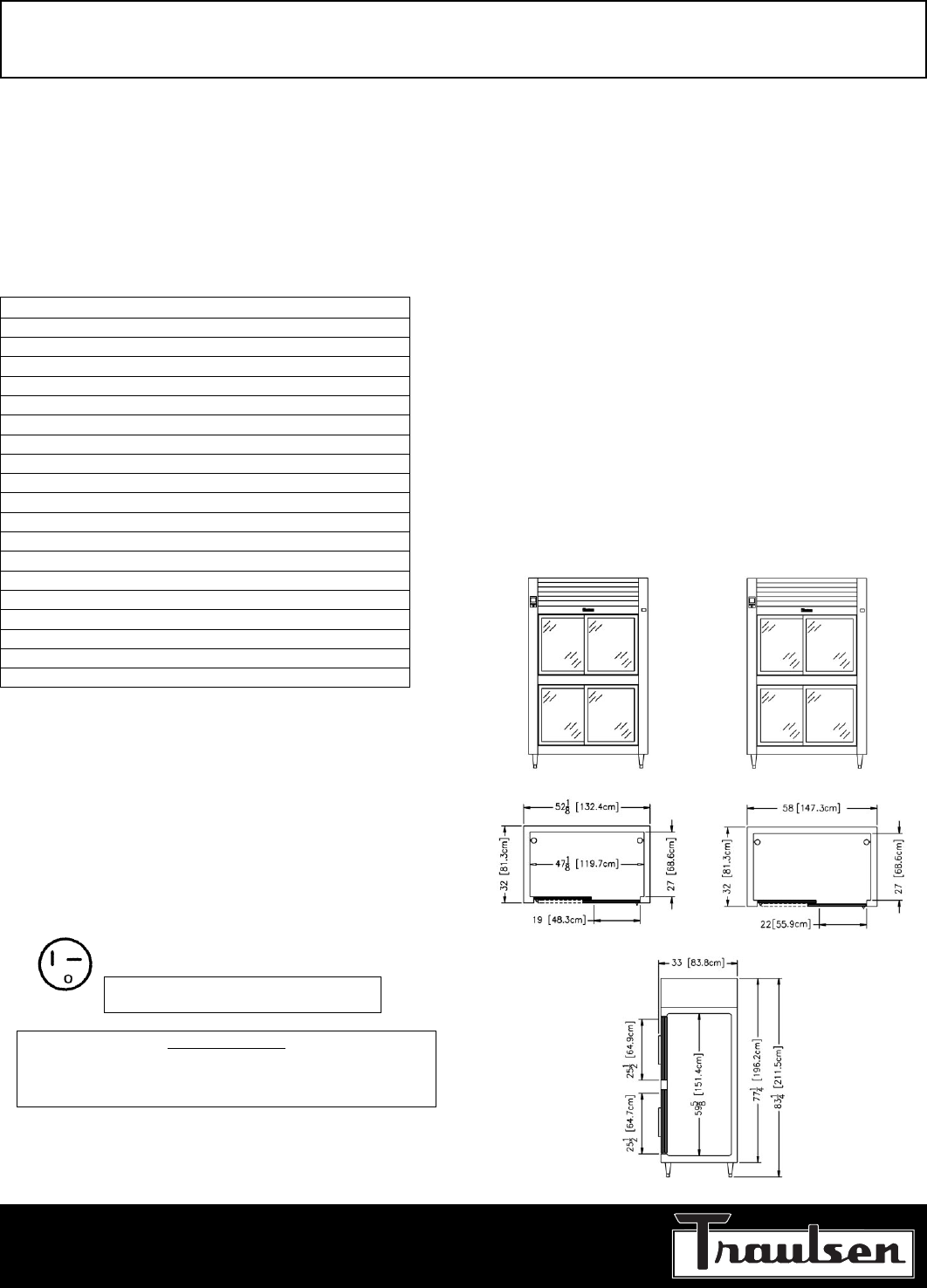
DIMENSIONAL DATA RHT232NUTSL RHT232WUTSL
Net capacity cu. ft. 46.0 (1303 cu l) 51.6 (1462 cu l)
Length - overall in. 52
1
⁄
8
(132.4 cm) 58 (147.3 cm)
Depth - overall in. 33 (83.8 cm) 33 (83.8 cm)
Depth - over body in. 32 (81.3 cm) 32 (81.3 cm)
Clear door width in. 19 (48.3 cm) 22 (55.9 cm)
Clear half-door height in. 25
1
⁄
2
(64.9 cm) 25
1
⁄
2
(64.9 cm)
Clear full-door height in. 57
3
⁄
4
(146.7 cm) 57
3
⁄
4
(146.7 cm)
Height - overall on 6" legs 83
1
⁄
4
(211.5 cm) 83
1
⁄
4
(211.5 cm)
No. Standard Shelves 6 6
Shelf area sq. ft.
1
34.6 (3.2 sq m) 37.6 (3.49 sq m)
Net Wt. lbs. 560 (254 kg) 630 (286 kg)
Gross Wt. lbs. 700 (318 kg) 770 (349 kg)
ELECTRICAL DATA
Voltage 115/60/1 115/60/1
Feed wires with Ground 3 3
Full load amperes 15.9 15.9
REFRIGERATION DATA
Refrigerant R-134a R-134a
BTU/HR H.P.
2
5120 (
3
⁄
4
HP) 5120 (
3
⁄
4
HP)
NOTE: When ordering please specify: Voltage, Hinging, Door Size, Options and any
additional warranties.
Continued product development may necessitate specification changes without notice.
Part No. TR35825 (revised 1/07)
Construction, Hardware and Insulation
Cabinet exterior front, one piece sides and louver assembly are constructed of 20
gauge stainless steel with #4 finish. Cabinet interior is constructed of stainless steel.
The exterior cabinet top, back and bottom are constructed of heavy gauge
aluminized steel. A set of four (4) adjustable 6" high stainless steel legs are included.
Tempered sliding glass doors are self-closing, with a stay open feature in the fully
opened position, and are easily removable for cleaning. An exterior ON/OFF switch
is provided to activate the interior fluorescent lighting. Anti condensate heaters are
located behind each door opening.
Cabinet is insulated with an average of 2" thick high density, non-CFC, foamed in
place polyurethane.
Refrigeration System
A top mounted, self-contained, balanced refrigeration system using R-134a
refrigerant is conveniently located behind the one piece louver assembly. It features
an easy to clean front facing condenser, thermostatic expansion valve, air-cooled
hermetic compressor, plenum effect blower coil, large, high humidity evaporator coil
located outside the food zone and a top mounted condensate evaporator. Biased
return air duct protects against introduction of warm kitchen air, promoting even
temperature maintenance and efficient operation. A 9' cord and plug is provided.
Standard operating temperature is 34 to 38°F.
Controller
The easy to use water resistant INTELA-TRAUL
®
microprocessor control system is
supplied standard. Unit is NAFEM Data Protocol communication (NDP) ready.
Optional hardware required to be NDP compliant. Third party software required for
network connection. It includes a 3-Digit LED Display, Fahrenheit or Celsius
Temperature Scale Display Capability, and an RS485 data port. In addition it
includes audio/visual alarms for: Hi/Lo Cabinet Temperature, Clean Condenser,
Evaporator Coil and Discharge Line Sensor Failures, and Power Supply
Interruption.
Interior
Standard interior arrangements include three (3) chrome plated wire shelves per
section, mounted on pilasters. Shelves are full-width, and do not have any large
gaps between them requiring the use of "bridge" or "junior shelves." Recommended
load limit per shelf should not exceed 225 lbs. Optional tray slides may be
purchased in combination with, or in lieu of these. Both standard and optional
interior arrangements are completely installed at the factory.
Warranties
Both a one year parts and labor warranty and a five year compressor warranty (self-
contained models only) are provided standard. An optional 2
nd
year extended parts
and labor warranty is also available. In addition the INTELA-TRAUL
®
control is
warranted by a two year parts and labor warranty.
Specifications
NOTES
NOTE: Figures in parentheses reflect metric equivalents.
1= Area of standard shelf compliment only, does not include storage area of additional shelves or available
on cabinet bottom.
2= Based on a 90 degree F ambient and 20 degree F evaporator.
3= For approximate remote weights deduct 40 lbs. from respective net or gross weight. For other information
on remote models, please refer to spec sheet 12-2.
Plan - RHT232NUTSL
Elevation - RHT232NUTSL
Section - All Models
Plan - RHT232WUTSL
Elevation - RHT232WUTSL
Equipped With One NEMA 5-20P Plug
NOTE: Full load amps and plug style may vary depending
on electrical options chosen and condensing unit employed.
REQUIRED CLEARANCES
In order to assure optimum performance, the condensing unit MUST have an adequate supply of
air for cooling purposes. Therefore, the operating location must either have a minimum of 12”
clearance overhead of the condensing unit or allow for unrestricted air flow at the back of the unit.
Clearance of at least 12” above is required in order to perform certain maintenance tasks.